-
ZZYM自力式套筒调节阀申弘
详细信息| 询价留言ZZYM自力式套筒调节阀 产品说明
摘要本实用新型公开了一种自力式套筒调节阀,包括阀体、套筒、阀芯、阀盖、阀杆、立柱、调节弹簧、密封填料、填料压盖、推力球轴承、上压板、执行器、弹簧座、填料垫圈、调节盘、调整垫与联接件,所述阀体内设有阀腔,阀腔内装有套筒和与套筒配合的阀芯,阀芯固定在阀杆下端,可在套筒内上下移动,阀芯与套筒密封时将阀腔分隔为上下两腔,阀杆上端穿过上压板,与执行器推杆联接,采用套筒阀芯与执行器的共同作用,实现上下两阀腔的压力平衡,具有结构简单紧凑,可调节控制压力高,且可进行在线无干扰调整设定等优点,适用于需控制压力≥0.5MPa的气体、液体及蒸汽等工艺管道压力的自动调节控制。

执行机构有薄膜式,活塞式二种;作用型式有减压用阀后压力调节(B型)和泄压用阀前压力调节(K型)。产品公称压力等级有PN16,40,64;阀体口径范围DN20~300;泄漏量等级有II级,IV级和VI级三档;流量特性为快开;压力分段调节从15~2500Kpa。可按需要组合满足用户工况要求。

ZZYM自力式套筒调节阀产品特点
自力式压力调节阀无需外加能源,能在无电无气的场所工作,既方便又节约了能源。
压力分段范围细且互相交叉,调节精度高。
压力设定值在运行期间可连续设定。
对阀后压力调节,阀前压力与阀后压力之比可为10:1~10:8。
橡胶膜片式检测,执行机构测精度高,动作灵敏。
采用压力平衡机构,使调节阀反应灵敏,控制准确。

为了克服现有单座式、双座式、套筒式调节阀产品结构复杂,成本高,维护不便的不足,本发明提供一种自力式调节阀。本发明解决其技术问题所采用的技术方案是一种自力式调节阀,包括阀体、阀座、 阀瓣,阀座固定在阀体内,阀体内还装有一驱动缸,驱动缸通过托架与阀体联结,驱动缸内装有一活塞,阀瓣通过活塞杆与活塞联结成一整体,驱动缸被活塞分成左腔与右腔,左腔通过管件伸出阀体与阀门的进口相连,管件上装有一节流阀,右腔通过管件伸出阀体与阀门的出口相连,管件上也装有一节流阀。本发明的有益效果是结构简单紧凑,成本低,维护方便,靠介质的压力差来驱动阀瓣往返运动来实现系统流量和压力的调节。

ZZYM自力式套筒调节阀主要材质
ZZYM自力式套筒调节阀主要技术参数材料代号 C(WCB) P(304) R(316) 主要
零件阀体 WCB(ZG230-450) ZG1Cr18Ni9Ti(304) ZG1Cr18Ni12Mo2Ti(316) 阀芯,阀座 1Cr18Ni9Ti(304) 1Cr18Ni9Ti(304) 1Cr18Ni12Mo2Ti(316) 阀杆 1Cr18Ni9Ti 1Cr18Ni9Ti 1Cr18Ni12Mo2Ti 膜片 丁睛橡胶,乙丙橡胶,氯丁胶,耐油橡胶 膜盖 A3,A4钢涂四氟乙烯 填料 聚四氟乙烯,柔性石墨 弹簧 60Si2Mn 导向套 HPb59-1
注:压力调节范围可根据用户要求进行制做.公称通径DN(mm) 20 25 32 40 50 65 80 100 125 150 200 额定流量系数Kv 额定行程(mm) 8 10 14 20 25 40 50 允许压差(MPa) 2.5 2.0 1.6 1.0 公称压力(MPa) 1.6 4.0 6.4 流量特性 快开 压力调节范围(KPa) 15∼50,40∼80,60∼100,80∼140,120∼180,160∼220,200∼260,240∼300,
280∼350,330∼400,380∼450,430∼500,480∼560,540∼620,600∼700,680∼800 780∼900,880∼1000,600∼1500,1000∼2500调节精度(%) ±5 工作温度℃ 液体≤120;气体≤80;带冷凝器和散热片≤350(适用于高温工况) 适用介质 执水,气体,蒸汽,低粘度介质 允许泄漏量 硬密封(L/h) 单座≤10-4×阀额定容量(IV级);双座,套筒≤5×10-3阀额定容量(II级 软密封(ml/min) 0.15 0.30 0.45 0.60 0.90 1.7 4.0 6.75 减压比 *大 10 *小 1.25
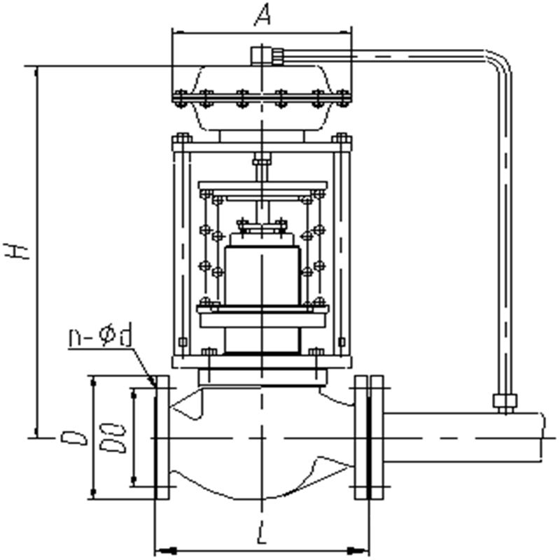
ZZYM自力式套筒调节阀外形连接尺寸
自力式压力调节阀根据取压点位置分阀前和阀后两类,取压点在阀前时,用于调节阀前压力恒定;取压点在阀后时,用于调节阀后压力恒定。当将阀前和阀后压力同时引入执行机构的气室两侧时,自力式压差调节阀可以调节调节阀两端的压力恒定。公称通径(DN) 20 25 32 40 50 65 80 100 125 150 200 L PN16,40 150 160 180 200 230 290 310 350 400 480 600 PN64 230 230 260 260 300 340 380 430 500 550 650 B 383 512 603 862 1023 1380 1800 H 压力
调节
范围
MPa15∼140 475 520 540 710 780 840 880 915 130∼300 455 500 520 690 760 800 870 880 280∼500 450 490 510 680 750 790 860 870 480∼1000 445 480 670 740 780 850 860 600∼1500 445 570 600 820 890 950 1000 1000∼2500 445 570 600 820 890 950 1000 A 压力
调节
范围
MPa15∼140 φ280 φ308 130∼300 φ230 280∼1000 φ176 φ194 φ280 600∼2500 φ85 φ96 导压管接口螺纹 M16×15
本实用新型公开了一种自力式套筒调节阀,包括阀体,套筒,阀芯,阀盖,阀杆,立柱,调节弹簧,密封填料,填料压盖,推力球轴承,上压板,执行器,弹簧座,填料垫圈,调节盘,调整垫与联接件,所述阀体内设有阀腔,阀腔内装有套筒和与套筒配合的阀芯,阀芯固定在阀杆下端,可在套筒内上下移动,阀芯与套筒密封时将阀腔分隔为上下两腔,阀杆上端穿过上压板,与执行器推杆联接,采用套筒阀芯与执行器的共同作用,实现上下两阀腔的压力平衡,具有结构简单紧凑,可调节控制压力高,且可进行在线无干扰调整设定等优点,适用于需控制压力≥0.5MPa的气体,液体及蒸汽等工艺管道压力的自动调节控制.
ZZYM自力式套筒调节阀安装注意事项
1、阀在气体或低粘度液体介质中使用时,通常ZZY型自力式压力调节阀为直立安装在水平管上,当位置空间不允许时才倒装或斜装。
2、为便于现场维修及操作,调压阀四周应留有适当空间。
3、当介质为洁净气体或液体时,阀前过滤器可不安装。
4、调压阀通径过大(DN≥100 时),应有固定支架当确认介质很洁净时,件3可不安装。
5、位置实在不允许时,旁通阀可以省略。
6、阀组后根据需要用户可选配止回阀、安全阀等。
7、阀在蒸汽或高粘度液体介质中使用时,通常ZZY型自力式压力调节阀为倒立安装在水平管上,冷凝器(蒸汽用自力式)应高于调压阀的执行机构而低于阀前后接管。使用前冷凝器应灌满冷水,以后约 3个月灌水一次。订货须知:
一、①产品名称与型号②口径③是否带附件以便我们的为您正确选型④的使用压力⑤的使用介质的温度。
二、若已经由设计单位选定公司的型号,请按型号直接向我司销售部订购。三、当使用的场合非常重要或环境比较复杂时,请您尽量提供设计图纸和详细参数,由我们的阀门公司专家为您审核把关。如有疑问:请:我们一定会尽心尽力为您提供优质的服务。提供全面、*的“阀门系统解决方案",也十分愿意帮助用户解决生产中所遇到的难题。
-
联系方式
- 联系人:申弘阀门
- 电 话:021-59260058
- 手 机:15901754341
- 传 真:86-021-31662735
- 邮 箱:494522509@qq.com
- 邮 编:201718
- 地 址:上海市青浦区金泽工业园区
- 网 址: https://bengye.cn.goepe.com/
http://www.021-fm.com
-
产品搜索








