-
申弘自力式流量控制阀ZL47F
详细信息| 询价留言ZL47F自力式流量控制阀 产品说明
本实用新型涉及一种阀,尤其是一种用于流体输送管网中控制流量的流量调节控制阀。自力式流量平衡阀的作用是在阀的进出口压差变化的情况下,维持通过阀门的流量恒定,从而维持与之串联的被控对象(如一个环路、一个用户、一台设备等,下同)的流量恒定。

自力式流量控制阀从结构上说,是一个双阀组合,即由一个手动调节阀组和进口平衡阀组组成。手动调节阀组的作用是设定流量,自动平衡阀组的作用是维持流量恒定。对于手动调节阀组来说,流量,式中Kv为手动调节阀口的流量系数,P2- P3为手动调节阀阀口两侧的压差。Kv的大小取决于开度,开度固定,Kv即为常数,那么只要P2- P3不变,则流量G不变。而P2- P3的恒定是由自动平衡阀组控制的。比如进出口压差P1- P3增大,则通过感压膜和弹簧的作用使自动平衡阀组关小,使P1- P2增大,从而维持P2-P3的恒定;反之P1- P3减小,则自动平衡阀组开大,使P1- P2减小,维持P2-P3的恒定。

自力式平衡阀则可在没有外接电源的情况下,自动实现系统的流量平衡。自力式平衡阀是通过保持孔板(固定孔径)前后压差一定而实现流量限定的,因此,也可称定流量阀。为实现上述目的,本实用新型采取的技术方案是集自动平衡阀组和手动调节阀组这双阀结构于一体共装连于阀体内,且两阀组所配连的纵向中轴线是与阀内介质流动方向相垂直的同一轴线,自动平衡阀组中套筒内密配合连接的自动阀塞是在塞体圆周壁上制有3~5个均布的等面积梯形节流窗的新结构自动阀塞,并还将手动调节阀组设计采用旋转双闸板新结构,所组连成为新型的自力式流量调节控制阀。该阀是通过本体上套筒节流窗式自动阀塞、旋转式双闸板、感压膜片以及管路压差(压力)变化而自力保持设定的控制流量恒定的动态调节阀门。其功能是锁定已设定的通过流量,使管网的流量调节过程无需考虑分支管线间流量调节的相互干扰,使流量分配工作变成直观的一次性操作。本阀使用时,可在工作介质液压作用下,自动消除管线的富余压头及压力波动所引起的流量偏差,消除阀后压力的异常变化,稳定被控管网系统的运行工况。
定流量阀作用对象是流量,能够锁定流经阀门的水量,而不是针对阻力的平衡。他能够解决系统的动态失调问题:为了保持单台制冷机、锅炉、冷却塔、换热器这些设备的高效率运行,就需要控制这些设备流量固定于额定值;从系统末端来看,为了避免动态调节的相互影响,也需要在末端装置或分支处限制流量。
ZL47F自力式流量控制阀在设计中应注意的问题
自力式流量控制阀的缺点是在于阀门有*小工作差的要求,一般产品要求*小工作压差20KPa,如果安装在*不利回路上,势必要求循环水泵多增加2米水柱的工作扬程,所以应采取近端安装,远端不安的方法。用户离热源距离大于供热半径的80%时就不要安装这种自力式流量控制阀。
产品特点
可按设计或实际要求设定流量, 能自动消除系统的压差波动,保持流量不变。
克服系统冷热不均现象,提高供热(供冷)质量。
彻底解决近端压差大,远端压差小的矛盾。
减少系统循环水量,降低系统阻力。
减少设计工作量,不需要对管网进行繁琐的水力平衡计算。
降低调网难度,把复杂的调网工作简化为简单的流量分配。
免除多热源管网热源切换时的流量再分配工作。
ZL47F自力式流量控制阀主要技术参数
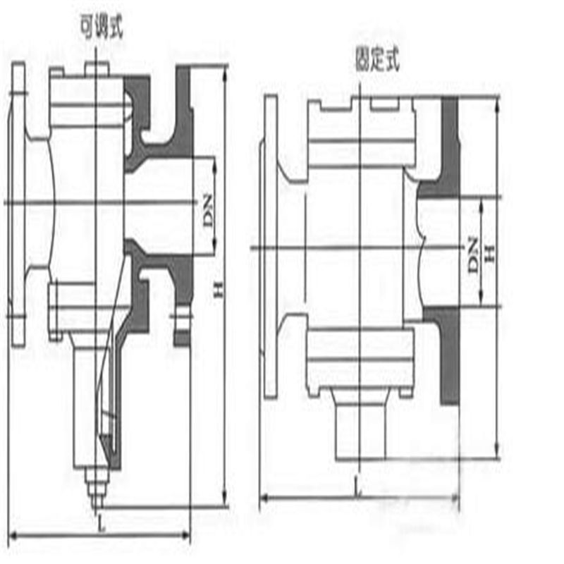
阀体形式 直通铸造阀体 公称通径 DN15~350mm 公称压力 PN1.0、1.6 MPa 法兰标准 ANSI、JIS、DIN、GB、JB (特殊可按用户提供) 连接形式 法兰(FF RF RTJ)、螺纹(适用于DN25以内) 介质温度 0~150℃ 工作压差 20~600KPa 流量精度 5% ■ZL47F自力式流量控制阀 主要零件材料及结构图
1 底盖 铸铁、球墨铸铁、铸钢 2 弹簧 65Mn/60Si2Mn 3 阀体 铸铁、球墨铸铁、铸钢 4 阀座 2Cr13、304 5 阀芯 2Cr13、304 6 阀杆 2Cr13、304 7 密封垫片 柔性石墨、聚四氟乙烯 8 密封填料 V型聚四氟乙烯填料、石棉纺织填料、石墨填料 9 锁 厂家配套 ZL47F自力式流量控制阀 主要技术参数
公称压力(MPa) 壳体试验压力(MPa) 适用温度 适用介质 1.6 2.4 ≤100℃ 水、油等非腐蚀性液体 ZL47F自力式流量控制阀主要连接尺寸
公称通径 (mm) 尺 寸(mm) 流量控制范围 m3/h L H1 H2 15 110 122 70 0.1~1 20 110 122 70 0.1~1.5 25 115 137 74 0.2~2 32 160 182 91 0.5~4 40 200 191 147 1~6 50 215 197 147 2~10 65 230 205 154 3~15 80 275 259 181 5~25 100 290 268 211 10~35 125 315 334 227 15~50 150 350 357 260 30~80 200 430 407 303 40~180 250 520 452 367 100~300 300 635 486 430 150~500 350 670 555 495 200~700 
由于本实用新型是集自动平衡阀组和手动调节阀组这双阀于一体的组合结构,且自动平衡阀组的自动阀塞又设计为在塞体圆周制有三个均布等面积梯形截流窗结构,使工作介质由三个节流均匀进入自动平衡阀塞内腔,自动阀塞受力平衡,内压稳定,也使得自动阀塞的每一个静止位置的面积变化与手动调节阀的调节更相为同步,还将手动调节阀设计采用旋转双闸板新结构,使阀杆调节行程与所对应调节流量的关系趋于线性,双闸板结构也大大缩短了手动调节阀的轴向尺度,减轻了阀的重量。因此,本实用新型的自力式流量控制阀与现有技术相比,具有结构新颖、设计合理、配合紧密、阀内压力稳定、噪音低、控制流量精度高、使用简便等有益效果。它适用于各种流体输送管网,也适于供热管网的流量控制,系一种新型的流量控制阀。摘要本实用新型提供了一种用于流体输送管网中控制液体流量的自力式流量调节控制阀。它是将自动平衡阀组和手动调节阀组集连于阀体内,且两阀组所配连的纵向中轴线是与阀体内介质流向相垂直的同一轴线,自动平衡阀组中套筒内密配合连接的自动阀塞是周壁制有节流窗的套筒节流窗式自动阀塞。其结构新颖、阀内压力稳定、控制流量精度高、使用简便,可用于各种流体输送管网、供热管网的流量控制,系一种新型的流量调节控制阀。

ZL47F自力式流量控制阀安装与调试:
1、自力式流量平衡阀安装方式:水平、垂直均可;
2、安装时要注意阀体外水流指示箭头,遵循方向安装;
3、安装前要清除管道内的杂物,通水前须冲洗管道;
4、自力式流量平衡阀流量调节方法:
(1)把测压小阀与智能仪表上的软管连接好;
(2)松开测压小阀的阀杆;
(3)用钥匙打开锁销,使锁销从锁体中弹出;
(4)用活动扳手顺时针慢慢旋转阀杆;流量逐渐减小并在智能仪表上显示出来,直到达到设定值为止;
(5)左右微转阀杆,使数显窗口内的数字与窗口内数字与窗口对正;
订货须知:
一、①产品名称与型号②口径③是否带附件以便我们的为您正确选型④的使用压力⑤的使用介质的温度。
二、若已经由设计单位选定公司的型号,请按型号直接向我司销售部订购。三、当使用的场合非常重要或环境比较复杂时,请您尽量提供设计图纸和详细参数,由我们的阀门公司专家为您审核把关。如有疑问:请:我们一定会尽心尽力为您提供优质的服务。提供全面、*的“阀门系统解决方案",也十分愿意帮助用户解决生产中所遇到的难题
-
联系方式
- 联系人:申弘阀门
- 电 话:021-59260058
- 手 机:15901754341
- 传 真:86-021-31662735
- 邮 箱:494522509@qq.com
- 邮 编:201718
- 地 址:上海市青浦区金泽工业园区
- 网 址: https://bengye.cn.goepe.com/
http://www.021-fm.com
-
产品搜索








