-
ZZYVP储罐供氮装置申弘
详细信息| 询价留言ZZYVP储罐供氮装置 产品说明
本实用新型属于石化工艺装置中间产品罐及储运罐区领域,主要涉及储罐氮封系统。氮封阀装置是自力式调节阀的一种,自力式调节阀根据应用介质的不同,有很多种,有空气的,氮气的,蒸汽的,液体的,储罐顶一般会装有呼吸阀,有毒介质储罐当达到液面稳定时,罐顶的压力等于介质于该温度下的蒸汽压,当呼吸阀呼出的时候,有毒介质会排到罐外面,容易造成人员中毒,为了避免有毒介质挥发,需要在罐顶液面上保持一定压力,以避免有毒介质挥发然后排空,一般用氮气来保持这种压力,这就叫氮封。
ZZYVP储罐供氮装置背景技术:
除SH/T3007要求外,甲B、乙A类中间原料储罐、芳烃类储罐、轻污油储罐、酸性水罐、排放气中含有较高浓度油气和硫化物等需对排放气体进行收集治理的储罐应设置氮气密封系统。目前氮气密封系统,注氮气管线上阀门设置的方式为:调节阀、自力式调节阀、氮封阀。调节阀和自力式调节阀可以把罐顶部压力稳定在工艺要求的值P1,阀门基本一直开着,罐顶压力>P1,阀门关小或关闭;罐顶压力<P1,阀门开大,而专用的氮封阀在罐顶压力<工艺要求的值P1时,阀门打开;在罐顶压力≥工艺要求的值P1时,阀门关闭。上述方案中,自力式调节阀和氮封阀,只能把罐压力稳定在P1附近,压力控制范围很少,会造成开关较频繁,特别是当装卸罐时,罐内压力一直变动,使得阀门一直在不停的开启和关闭,造成阀门寿命缩短。自力式调节阀和氮封阀二者控制精度较低,且出现故障时,在控制室内无法远程发现。调节阀方案一般为分程控制,注入氮气管线和排气管线上各设置1个调节阀,此方案比较浪费氮气。在实际生产中,罐顶部的压力安全值是一个范围,一般在0.2~0.7KPa都为允许压力波动范围。

ZZYVP储罐供氮装置特点:
1、无需外加能源,能在无电、无气的场合工作,既方便,又节约能源,降低成本.
2、氮封装置供氮、泄氮压力设定方便,可在连续生产的条件下进行.
3、压力检测膜片有效面积大,设定弹簧刚度小,动作灵敏,装置工作平稳.
4、采用无填料设计,阀杆所受摩擦力小,反应迅速,控制精度高.
5、供氮装置采用指挥器操作,减压比可达100:1,减压效果好,控制精度高.
ZZYVP储罐供氮装置技术实现要素:
为解决上述技术和经济问题,本实用新型的目的是提出一种既能保证工艺设计要求,又能节省业主投资和运营成本的方法的储罐氮封系统。

氮封阀调整:
供氮压力调整:在ZZV型微压调节阀压力调节范围内选定一设定值如1Kpa(100mm.w.c),通过调节调整螺丝2以改变弹簧3的预压缩(拉伸)量来达到;
泄氮压力调整:在ZZDQ快速泄放阀在的压力控制器部分,通过调整座3,改变弹簧4预压缩量达到。一般为避免氮封装置启闭频繁,泄氮设定值应远离供氮压力值,如2Kpa(200mm.w.c);
呼吸阀高定值调整:在上述两设定值调整好后,为避免呼吸阀启闭频繁,呼吸阀设定值应大于泄压设定值。

本实用新型与现有技术相比具有明显的优点和有益效果。借由上述技术方案,本实用新型储罐氮封系统可达到相当的技术进步性及实用性,并具有产业上的广泛利用价值,其至少具有下列优点:
本实用新型储罐氮封系统,对切断阀设定高低压力开关值,既满足了对罐顶氮封控制精度的要求,又减少了开关阀门的次数,保证储罐氮封的安全、平稳、长周期运转。同时,降低了建设成本和装置的运行成本,为企业创造更高的利润。

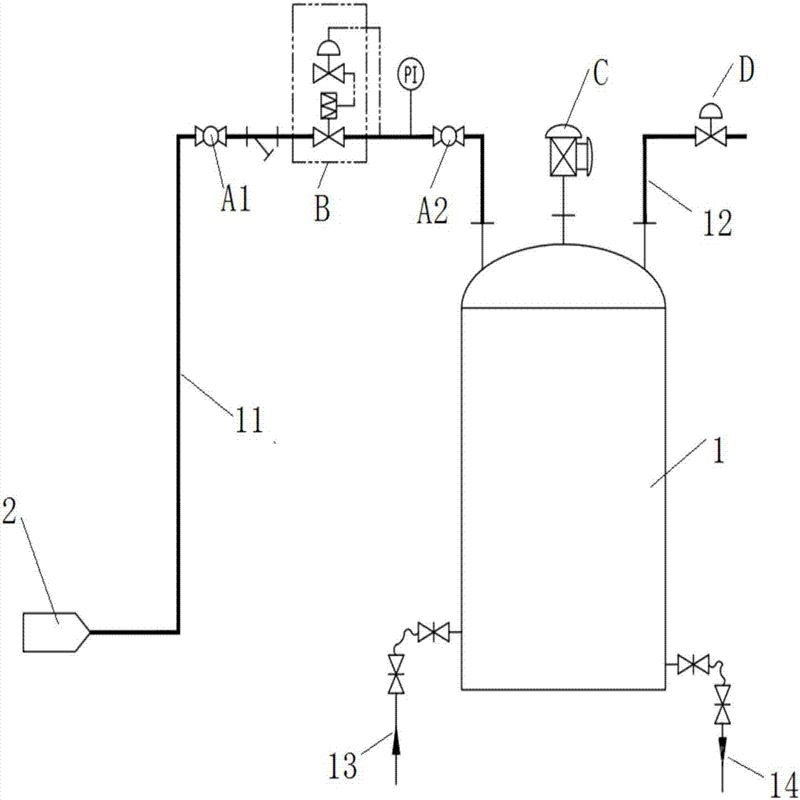
根据工艺要求,储罐顶部压力一般维持在一个范围,常为0.2~0.7KPa(根据工艺要求定),根据工艺要求设定*切断阀5的开关值,假设为0.2~0.5KPa(数值范围由工艺要求决定),再设定第二切断阀6的开关值,假设为0.52~0.7KPa(数值范围由工艺要求决定),当压力变送器4检测到储罐1内的压力≤0.2KPa时,压力变送器在控制系统内低1报警联锁,*切断阀5打开,氮气注入储罐;压力≥0.5KPa时,压力变送器在控制系统内高1报警联锁,*切断阀5关闭,氮气停止注入储罐。当氮气停止注入罐后,压力变送器4检测压力≥0.7KPa,压力变送器在控制系统内高2报警联锁,第二切断阀6打开,罐顶气体通过油气回收管线排出储罐;压力变送器4检测压力≤0.52KPa,压力变送器在控制系统内低2报警联锁,同时第二切断阀6关闭,罐顶气体停止排出。
本实用新型储罐氮封采用此方案后,既满足了对罐顶氮封控制精度的要求,又减少了开关阀门的次数,保证罐氮封的安全、平稳、长周期运转。同时,降低了建设成本和装置的运行成本,为企业创造更高的利润。*后应说明的是:以上实施例仅用以说明而非限制本实用新型的技术方案,尽管参照上述实施例对本实用新型进行了详细说明,本领域的普通技术人员应当理解:依然可以对本实用新型进行修改或者等同替换,而不脱离本实用新型的精神和范围,而所附权利要求意在涵盖落入本发明精神和范围中的这些修改或者等同替换。
ZZYVP储罐供氮装置零件材料
零件名称
材料
阀体
ZG230-450 ZG1Cr18i9Ti
阀杆、阀芯、阀座
1Cr18i9Ti
膜片
丁腈橡胶夹增强绦纶织物
弹簧
60Si2Mn
波纹管
1Cr18i9Ti

ZZYVP储罐供氮装置主要技术参数公称通径DN(mm)
20
25
32
40
50
65
80
100
额定流量系数(KV)
8
11
20
32
50
80
100
160
额定行程(mm)
6
8
10
15
20
公称压力PN(Mpa)
0.10
压力调节范围(MP a)
0.5∽5.5、5∽10、9∽14、13∽19、18∽24、23∽28
27∽33、31∽38、36∽44、42∽51、49∽58、56∽66介质温度(℃)
≤80℃
调节精度(%)
±10
允许泄漏量(L/h)
10ˉ4×阀额定容量

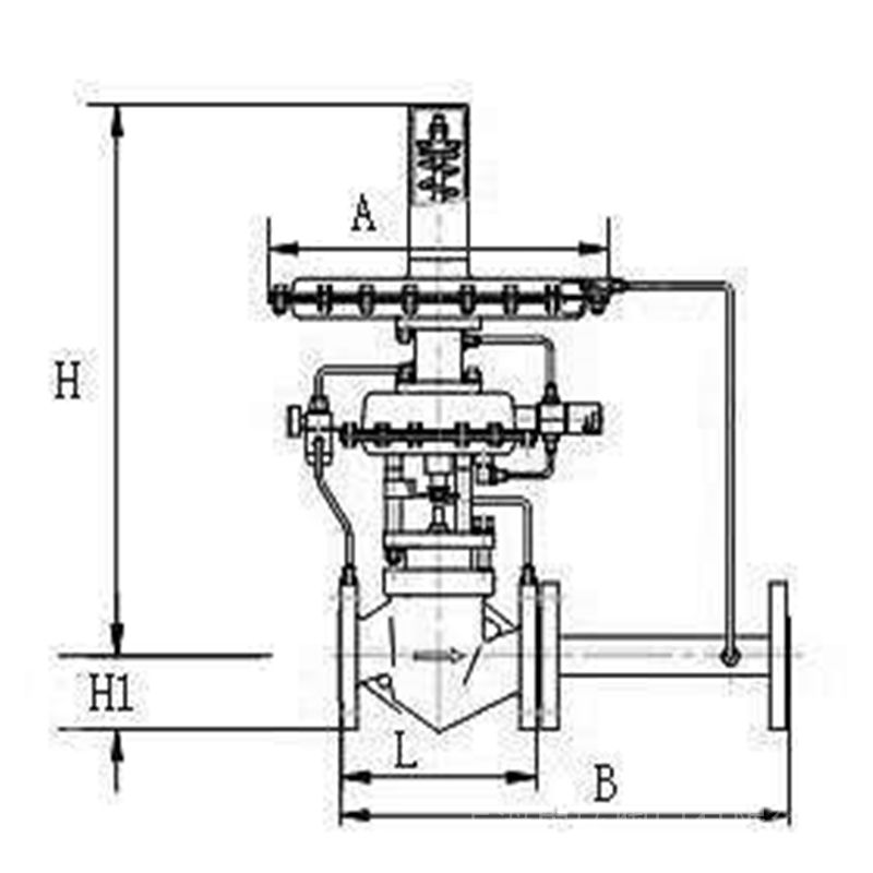
ZZYVP储罐供氮装置规格及重量公称通径DN
20
25
32
40
50
65
80
100
A
192
232
308
H
629
631
652
666
689
797
837
1050
L
150
160
180
200
230
290
310
350
G(Kg)
18
19
21
23
25
37
50
59

法兰规格公称通径DN
20
25
32
40
50
65
80
100
D
105
115
140
150
165
185
200
220
D1
75
85
100
110
125
145
160
180
B
16
18
20
22
n-ф
4-14
4-18
8-18
f1×D2
2×56
3×65
3×76
3×84
3×99
3×118
3×132
3×156

阀门生产的氮封阀、氮封装置是自主开发、研制的一套自力式微压力控制系统,只有用于保持容器顶部保护气(一般为氮气)的压力恒定,以避免容器内物料与空气直接接触,防止物料挥发、被氧化,以及容器的安全。特别适用于各类大型储罐的气封保护系统。该产品具有节能、动作灵敏、运行可靠、操作与维修方便等特点。广泛应用于石油、化工等行业。

用新型的目的及解决其技术问题是采用以下的技术方案来实现的。依据本实用新型提出的一种储罐氮封系统,包括设在储罐顶上的氮气注入主管和压力变送器,其中:所述氮气注入主管上沿氮气流动方向依次设有*手阀、*切断阀、排空阀和第二手阀;所述氮气注入主管上并联设置有氮气注入旁路管,该氮气注入旁路管上沿氮气流动方向依次设有旁路阀和限流孔板;所述压力变送器采集储罐顶部压力并将采集到的压力信息输送到仪表控制系统中;所述仪表控制系统中设有*切断阀的开关压力值,并向*切断阀传输开关控制命令;所述仪表控制系统设有罐顶压力高低报警;所述*切断阀的开关信息通过开关回讯信号反馈到仪表控制系统中。
本实用新型的目的以及解决其技术问题还可以采用以下的技术措施来进一步实现。氮封装置的作用是防止储罐挥发性有毒或可燃气体泄放到罐外危害安全,以一定的微压氮气在罐内保持一定的压力,氮封阀是设在罐顶的。
氮封装置取压点的介质经导压管引入检测机构,反馈结构的设计使得介质直接经阀盖进入检测机构,在罐顶的罐呼吸阀能起安全作用,一般泄氮阀的压力设定点略大于供氮阀的压力设定点,以免供、泄氮装置频繁工作。
在流量控制方面每个阀门都配有控制流量百分比的固定板孔,气体密封系统的每个阀门尺寸根据气体流量表排列,根据提供的稳定气体压力计算适应特定需要气体密封的流量。
氮封阀中的氮气可以起到置换装置介质、平衡系统的压力等功能,用于保持容器顶部保护气的压力恒定,一般的氮气压力是常压,主要作用
一是在于减少挥发,如苯罐,
二是防止介质与空气的反应,如碱罐,防止储罐内物料与氧接触会氧化或发生化学反应;还有可以稀释呼出气体的浓度。进罐压力一般减压至1bar。适用于各类大型储罐的气封保护系统,运行可靠,并广泛适用于石油、化工等行业。

前述的储罐氮封系统,其中所述的储罐顶上还设有油气回收管线,该油气回收管线上沿油气流向依次设有第三手阀和第二切断阀,该第二切断阀接收控制系统的命令,且在控制系统中设有开关压力值。
前述的储罐氮封系统,其中所述的第二切断阀的开关信息通过开关回讯信号反馈到仪表控制系统中。

订货须知:
一、①产品名称与型号②口径③是否带附件以便我们的为您正确选型④的使用压力⑤的使用介质的温度。
二、若已经由设计单位选定公司的型号,请按型号直接向我司销售部订购。三、当使用的场合非常重要或环境比较复杂时,请您尽量提供设计图纸和详细参数,由我们的阀门公司专家为您审核把关。如有疑问:请:我们一定会尽心尽力为您提供优质的服务。提供全面、*的“阀门系统解决方案",也十分愿意帮助用户解决生产中所遇到的难题。
-
联系方式
- 联系人:申弘阀门
- 电 话:021-59260058
- 手 机:15901754341
- 传 真:86-021-31662735
- 邮 箱:494522509@qq.com
- 邮 编:201718
- 地 址:上海市青浦区金泽工业园区
- 网 址: https://bengye.cn.goepe.com/
http://www.021-fm.com
-
产品搜索






