-
ZZYVP带指挥器氮封阀申弘
详细信息| 询价留言ZZYVP带指挥器氮封阀 产品说明
本实用新型涉及氮封阀技术领域,特别涉及一种带有高效指挥器的氮封阀。储罐内压力升高至设定压力时,快速泄放阀迅速开启,将罐内多余压力泄放。微压调节阀在储罐内压力降低时,开启阀门,向罐内充注氮气。因微压调节阀必须使用在压力为0.1Mpa压力以下,现场压力较高,必须安装ZZYP型压力调节阀将压力调节阀将压力降低至0.1Mpa以下才可使用。公称压力0.1Mpa,压力可按分段设定,从0.5Kpa 至66 Kpa以下,介质温度温度≤80℃。

ZZYVP带指挥器氮封阀特点:
1、无需外加能源,能在无电、无气的场合工作,既方便又节约能源,降低成本。
2、氮封装置供氮,泄氮压力设定方便,可在连续销售的条件下进行。
3、压力检测膜片有效面积大,设定弹簧刚度小、动作灵敏、装置工作平衡。
4、采用无填料设计,阀杆所受磨擦力小、反应迅速、控制精度高。
5、供氮装置采用指挥器操作,减压比可达100:1,减压效果好、控制精度高。
6、为确保储罐的安全,需在罐顶设置呼吸阀。
7、呼吸阀公起安全作用,避免了常规氮封装置中启闭频繁易损坏的缺陷。

背景技术:
氮封装置主要用于储罐顶部,来维持储罐的微正压,隔离物料与外界的接触,减少物料的挥发和浪费,保护储罐安全。一种可以监测执行机构膜片泄漏的氮封阀指挥器结构,包括指挥器检测腔体、预设弹簧、阀杆以及指挥器阀芯,指挥器检测腔体内部自上而下设置有主膜片和备用膜片,主膜片和备用膜片均与阀杆固定连接,主膜片和备用膜片将指挥器检测腔体分隔为上、中、下三个膜腔,上膜腔设有进气口,下膜腔设有出气口,中膜腔的侧部通接有压力平衡装置;当主膜片正常工作的情况下,中膜腔与环境气体相通;当主膜片破损出现泄露时,压力平衡装置将中膜腔进行密封。

ZZYVP带指挥器氮封阀技术实现要素:
本实用新型的目的是提供一种带有高效指挥器的氮封阀,解决了因主膜片破裂未及时收集处理导致膜片在腔室内被腐蚀,后期不易处理的问题。利用本申请的结构,当由于介质腐蚀和应力作用,造成主膜片破裂,同时备用膜片可以代替主膜片继续工作,达到提醒操作人员故障原因,延缓维修,减少备品备件的目的。
但是由于主膜片破裂后,破裂的膜片会一直留在阀体内部,长时间未取出会造成膜片在腔室内被腐蚀,后期不易清理,因此存在改进空间。

ZZYVP带指挥器氮封阀应用举例
1、代替ZZV型微压阀
ZZV型微压阀阀前一般要求介质压力≤0.1MPa,而ZZYP-16Ⅱ型带指挥器操作式自力式压力调节阀则不受此限制。
2、用于氮封装置
氮封装置的贮罐内成品油上端覆盖氮气,其压力一般在100mmH2O左右,通过氮封保护装置加以控制。出液阀开启放油时,贮罐内液位下降,此时,ZZYVP-16B供氮调节阀开度增大,向贮罐内补充氮气使压力增加到设定值为止。进液阀开启进油时,液位上升,气相部分容积减小,氮气压力上升,此时ZZYVP-16B供氮调节阀关闭,而ZZVP-16K泄氮调节阀在压力控制器作用下开启,排出氮气使压力降至设定值。为确保储罐安全,应在罐顶设置呼吸阀。

供氮压力调整:在ZZYVP-16B型压力调节阀选定一设定值如1KPa(100mm.W.C),通过调整主弹簧1的预压缩(拉伸)量来达到;
泄氮压力调整:在ZZVP-16K泄放阀中的压力控制器部分,通过调整主弹簧预压缩量达到,一般为避免氮封装置启闭频繁,泄氮设定值应远离供氮压力设定值,如2Kpa(200mm.W.C)。
呼吸阀设定值调整:在上述两设定值调整好后,为避免呼吸阀启闭频繁,呼吸阀设定值应大于泄压设定值。两者设定期亦不能靠得太近。呼吸阀型号为:ZZFX-10。ZZYVP-16B压力设定值为PC,ZZVP-16K压力设定值P1,PC与P1两值不能靠得太近,以免阀门工作太频繁,呼吸阀的排放压力P2的设定值应大于P1,P2与P1两值也不能靠得太近。三者关系PC< P1< P2。

ZZYVP带指挥器氮封阀技术参数
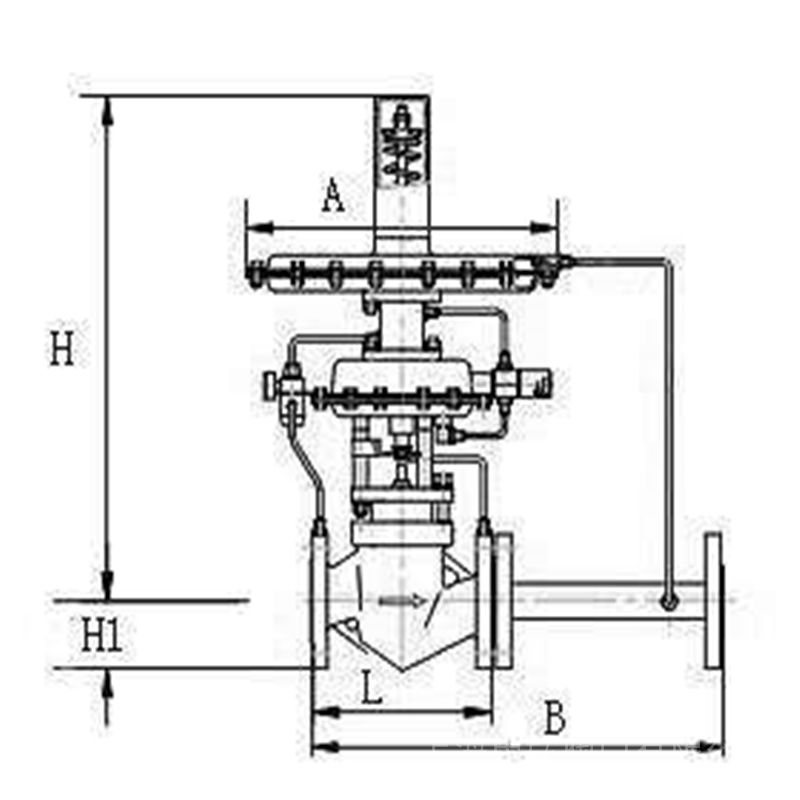
公称通径(mm) 20 25 40 50 80 100 150 阀座直径(mm) 6 15 20 25 32 40 50 65 80 100 125 150 额定流量系数Kv 3.2 5 8 10 20 32 50 80 100 160 250 400 压力调节范围 0.5~70 20~120 60~400 300~700 500~1000 KPa 公称压力PN 1.0、1.6 MPa 被调介质温度 80、200 ℃ 流量特性 快开型 调节精度 ≤5% 允许压降(MPa) 1.6 1.6 1.1 0.6 0.4 薄膜有效面积(C㎡) 200 280 400 允许泄漏量 符合ANSIB16.104—1976 IV级 阀盖形式 标准型 (整体式) 压盖型式 螺栓压紧式 密封填料 V型聚四氟乙烯填料、含浸聚四氟乙烯石棉填料、石棉纺织填料、石墨填料 阀芯形式 单座型阀芯 四、ZZYVP带指挥器氮封阀 结构图
五、ZZYVP带指挥器氮封阀 连接尺寸
公称通径(DN) 20 25 32 40 50 65 80 100 125 150 L 150 160 180 200 230 290 310 350 400 480 H 老型 105 117 120 139 144 188 208 220 268 278 精小型 52.5 57.5 75 75 85.5 92.5 100 110 142.5 158 H1 330 330 350 350 360 430 440 450 520 650 A 310 400 注:由于产品改进技术创新参数可能有一定变化,公司不另行通知,请咨询公司技术部门索取*新数据。

本实用新型公开了一种带有高效指挥器的氮封阀,包括腔体、阀杆和阀芯,还包括套设于阀杆上的弹簧和刮板,且所述弹簧的两端与腔体的下端面和阀芯的上端面固定连接,所述刮板与阀杆转动配合,所述刮板的下端面固定有齿轮一,所述阀杆的侧壁上设置有用于驱动齿轮一转动的驱动组件,所述腔体内设置有压力平衡组件,所述腔体内固定有主膜片和备用膜片,且主膜片和备用膜片均与阀杆固定紧密连接,解决了因主膜片破裂未及时收集处理导致膜片在腔室内被腐蚀,后期不易处理的问题。后期不易处理的问题。后期不易处理的问题。

ZZYVP带指挥器氮封阀安装使用与维护1、安装:
(1)安装前,检查整机零件是否缺损或者松动,对管道应进行清洗,介质流向应与阀体箭头指向一致。
(2)为便于现场维修与操作,阀四周应留有适当的空间。
(3)阀门应正立垂直安装在水平管道上,阀体与管道的法兰连接,要注意轴度,并应安装在环境温度不超过-25~55°C的场合使用。

2、使用
(1)开启阀前截止阀,使介质缓慢流入阀体
(2)拧开指挥器护罩,松开指挥器调节螺钉
(3)调节指挥器主弹簧,使阀后压力至设定值
(4)固定指挥器调节螺钉,装好护罩,调压阀即可开始工作
3、维护
(1)拆卸阀门时,要保护好精密零件的表面,拆装阀座时,要使用专用工具
(2)阀芯与阀座,不管修理或者更换,密封面都必须进行研磨
(3)弹簧若有裂缝迹象,必须更换
(4)密封垫片与0型圈每次检修时全部更换,膜片根据检查结果而定。
(5)阀门平时维护,只有观察阀后导压器上的压力表是否符合设计值要求即可。另外若发现各连接处有渗漏可 拧紧螺母与螺钉或更换密封垫片与0型圈。

订货须知:
一、①产品名称与型号②口径③是否带附件以便我们的为您正确选型④的使用压力⑤的使用介质的温度。
二、若已经由设计单位选定公司的型号,请按型号直接向我司销售部订购。三、当使用的场合非常重要或环境比较复杂时,请您尽量提供设计图纸和详细参数,由我们的阀门公司专家为您审核把关。如有疑问:请:我们一定会尽心尽力为您提供优质的服务。提供全面、*的“阀门系统解决方案",也十分愿意帮助用户解决生产中所遇到的难题。
-
联系方式
- 联系人:申弘阀门
- 电 话:021-59260058
- 手 机:15901754341
- 传 真:86-021-31662735
- 邮 箱:494522509@qq.com
- 邮 编:201718
- 地 址:上海市青浦区金泽工业园区
- 网 址: https://bengye.cn.goepe.com/
http://www.021-fm.com
-
产品搜索






