-
V6000型超大口径氮封阀申弘
详细信息| 询价留言V6000型超大口径氮封阀 产品说明
本实用新型涉及一种压力调节阀,特别是涉及一种无需外界能源,仅利用被调介质自身压力变化进行调节,且需调节控制的阀前、阀后压差很大,集执行与控制功能于一体的新型自力式压力调节阀。系统未运行时阀门关闭,系统运行时,阀前压力通过脉冲管进入指挥器,指挥器在气室1的激励时压力排除,主阀芯在阀前压力作用下打开;当阀后压力上升到设定压力时、压力通过反馈管传到气室1,气室1工作指挥器处于去激励工况、此时脉冲管吧阀前压力传递到气室2破坏当前平衡使阀芯运动至主阀切断,使阀后或罐内压力保持设定值。设定压力可通过调节杆调整。为适应小流量(Kv≤0.08)的需要,执行机构通过改造,还可以作为一种直接弹簧式调节器来使用。

V6000型超大口径氮封阀背景技术:
为使石油制品、化学品等储罐气封系统压力稳定在设定范围之内,往往通过加装自力式压力调节阀,对储罐内压力进行自动调节控制,以保护系统安全运行。 自力式微压氮封调节阀是一种无需外来能源,依靠被测介质自身压力或流量的变化,按预先设定值,进行自动调节的控制装置,是一种节能型仪表。它集监测、控制、执行诸多功能于一身,自成一个独立的仪表控制系统。
自力式微压氮封调节阀由于产品结构简单体积小,使用安装方便,维护工作量少等优点,特别适用于罐区储存氮封控制的场合。据外国报道系统采用该产品,气体使用效率比以前提高30%-40%,节能效果显著。
1 的实用新型公开了一种微压自力式压力调节阀。其主要缺点是1.结构较复杂,零部件数量多,装配难度较大。
2.控制阀芯在上下移动时,依靠导向片在阀座导向槽移动进行导向,其下端由螺旋弹簧支撑,易产生旋转力,使得控制阀芯可能产生偏转而出现卡阻,降低了调节灵敏度。
3.控制阀座由弹簧压紧于控制阀体内,阀座与压环加工精度要求较高,若阀座、压环配合间隙较大时,阀座易产生偏移而影响阀芯与阀座的同心度,可能造成控制阀关闭不严,泄漏量大而影响控制精度。发明内容本实用新型的目的是针对现有技术存在的缺点,提供一种适于减压范围宽、可调比大、工作稳定性和调节精度高的自力式压力调节阀。

V6000型超大口径氮封阀主要技术参数:
法兰连接D 按JB/T79.1 GB/T9113.1 HG20592 ASMEB16.5等尺寸链接 流量特性 快开 阀后控制范围(KPa) 0.1-0.36 0.32-1.00 0.9-2.5 2.1-4.5 3.9-7.2 阀前压力范围(MPa) 0.2-1.4 有效面积(c ㎡) 450 膜头外径Do(mm) Φ310 阀体/阀芯 WCB/A276 304 阀体/阀芯 CF8/A276 304 工作温度℃ -40-120 -12-150 -50-150 膜片材质 丁腈橡胶 氟橡胶 乙丙烯橡胶 V6000型超大口径氮封阀主要技术参数
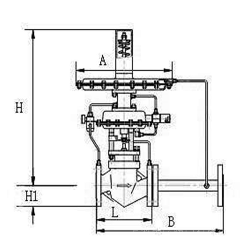
公称通径DN(mm) 20 25 40 50 80 100 150 阀座直径DN(mm) 6 15 20 25 32 40 50 65 80 100 125 150 额定流量系数Kv 3.2 5 8 10 20 32 50 80 100 160 250 400 压力调节范围Kpa 0.5~70 20~120 60~400 300~700 500~1000 公称压力PN(Mpa) 1.0 1.6 被调介质温度(℃) 80 200 流量特性 快开 调节精度(%) ≤5 允许压降(Mpa) 1.6 1.6 1.1 0.6 0.4 执行机构薄膜有效面积(C㎡) 200 280 400 允许泄漏量 符合ANSIB16.104—1976 IV级 七.V6000型超大口径氮封阀(带指挥器自力式压力调节阀)规格及重量外形尺寸

公称通径(DN) 25 40 50 80 100 150 法兰端面距(L) PN16 160 200 230 310 350 480 A PN16 115 150 165 200 220 285 B PN16 85 110 125 160 180 240 H1 PN16 83 95 110 140 160 230 H2 PN16 325 H PN16 650 680 750 790 840 990 G PN16 16 18 20 20 22 24 S PN16 308 nф PN16 4-14 4-18 4-18 4-18 4-18 8-22 重量(kg) 18 27 40 80 108 262 摘要本实用新型涉及一种指挥器操作式自力式压力调节阀,包括主阀、阀前导压管、过滤减压器、指挥器阀、指挥器阀导压管、针形调节阀和阀后导压管,指挥器阀安装于主阀上部,主阀进口端通过阀前导压管与指挥器阀左端口相连,主阀出口端通过阀后导压管与主阀下膜室相通,指挥器阀右端口通过导压管与针形调节阀上端口相通,针形调节阀下端口通过导压管与主阀上膜室相通,主阀出口端取压口通过导压管与指挥器阀上膜室相连,具有可调范围宽、可调比(阀前压力/阀后压力)大、调节精度高、工作稳定性好等优点,特别适用于阀前压力较高(0.2~0.8MPa)而阀后压力很低(0.5~100KPa)的储罐气封系统的压力自动调节控制。
自力式微压氮封调节阀采用先导式指挥器技术,较采用双膜头结构型式的阀密封少、结构更加简单易懂、动作更加灵敏(V6000阀杆与阀体间与密封垫)、保证设计值准确、调节精度更高。
V6000型超大口径氮封阀采用了可调节的限流元件,可根据设计参数与实际工况的差,进行流通能力的调节。弥补由于实际工况需要减小阀门的流通能力,无需更换小口径阀门,节约经费。轻阀座可以使氮封阀达到设定值后阀门全关闭,减少阀门泄漏对氮封的影响,达到节约氮气的作用。

订货须知:
一、①产品名称与型号②口径③是否带附件以便我们的为您正确选型④的使用压力⑤的使用介质的温度。
二、若已经由设计单位选定公司的型号,请按型号直接向我司销售部订购。三、当使用的场合非常重要或环境比较复杂时,请您尽量提供设计图纸和详细参数,由我们的阀门公司专家为您审核把关。如有疑问:请:我们一定会尽心尽力为您提供优质的服务。提供全面、*的“阀门系统解决方案",也十分愿意帮助用户解决生产中所遇到的难题。
-
联系方式
- 联系人:申弘阀门
- 电 话:021-59260058
- 手 机:15901754341
- 传 真:86-021-31662735
- 邮 箱:494522509@qq.com
- 邮 编:201718
- 地 址:上海市青浦区金泽工业园区
- 网 址: https://bengye.cn.goepe.com/
http://www.021-fm.com
-
产品搜索








