-
GP-1000先导型双膜片式高温蒸汽减压阀申弘
详细信息| 询价留言GP-1000先导型双膜片式高温蒸汽减压阀 产品说明
导阀型隔膜式减压阀在普通减压阀的基础上做了很大的改进。膜片采用了新型材料,并大大加工了工作面积,因此阀门上游压力或下游负荷细微的变化都能及时准确的反馈到主阀膜片,来调节主阀的开度,确保下游压力的稳定。 本实用新型可以很方便实现蒸汽管系减压的功能,避免了因为高温热胀冷缩引起卡住现象;先导型双膜片式蒸汽减压阀将冷凝水导入金属管和上盖处,起到了降温和隔热的作用,大大提高了橡胶膜片和活塞的寿命;同时,双膜片的结构,以橡胶膜片来密封并进行压力反馈、不锈钢膜片保护橡胶膜片防止被冲击力损坏,进一步的提高了膜片的性能和寿命;大大提闻了减压阀的综合性能。

本产品的另一个突出的特点为:同一个阀体上可安装和互换多个导阀在稳压的同时,实现温度控制、上游压力的控制、远程的开关控制等。上盖,内部呈空腔,所述膜片压板设置在所述上盖空腔内,所述上盖设置在所述橡胶膜片上,与所述阀盖支架顶部固定连接。
优选地,所述上盖与所述金属管的另一端连接;所述金属膜片呈圆形,中部设有第五阀杆通孔,该第五阀杆通孔周边呈环形凸起;所述金属膜片为不锈钢膜片;所述橡胶膜片呈圆形,中部设有第六阀杆通孔,该第六阀杆通孔周边呈环形凸起;膜片压板内部设有阶梯通孔;所述阀杆的顶盖连接体依次设置在所述第五阀杆通孔、第六阀杆通孔及阶梯通孔内,该顶盖连接体通过所述固定件固定设置在所述膜片压板内;所述固定件设置在所述阶梯通孔内。

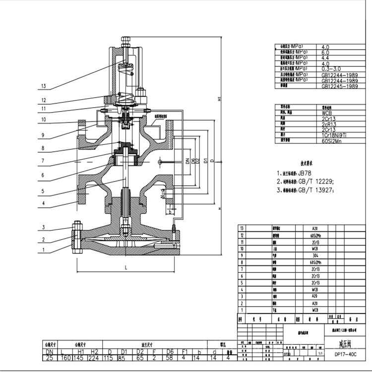
GP-1000先导型双膜片式高温蒸汽减压阀工作过程:
先导阀膜片感应压力变化;
先导阀将放大的信号输出给移动主阀的活塞;
主阀补偿迅速恢复压力
内部先导式减压阀的操作:
·启动
- 放松设定弹簧
- 高压蒸汽和阀簧将导阀和主阀关闭
·调整设定压力
- 压紧设定弹簧
- 导阀打开
- 活塞上部的高压蒸汽推动主阀打开
- 蒸汽流过主阀到达出口
·获得设定压力:
螺丝型特点 膜片式 / 球墨铸铁 / 法兰盘型 / 螺丝型 类型 膜片式引导作动型 仕様 适用流体 蒸汽 一次压力 0.1 - 2.0MPa 二次压力 0.02 - 1.4MPa(*) 连接方式 JIS Rc 螺丝型,JIS 20K RF 法兰盘型,JIS 10K FF 法兰盘型 二次压力可调 85% or less of the inlet pressure(gauge pressure) *低差压 0.05MPa *大减压比 20:1 *高温度 220 degree(C) 材料 阀体 球墨铸铁 主阀、阀座 不锈钢 导阀、导阀阀座 不锈钢 膜片 不锈钢
Size L (mm) H (mm) Weight (kg) Cv value 15A(1/2) 150 398 14.0 5 20A(3/4) 150 398 14.0 7.2 25A(1) 160 404 18.5 10.9 32A(1-1/4) 180 434 21.5 14.3 40A(1-1/2) 180 434 21.5 18.8 50A(2) 230 498 33.0 32 
在其主阀操作部主要是使用活塞, 但随着时代的要求,蒸汽系统的质量不断提高,也要求减压阀具有更高的控制性能。GP-2000蒸汽减压阀在其主阀操作部取代活塞, 使用膜片,先导薄膜式提高Cv值,对一次侧压力变化和二次负荷的变动也具有更高的控制性能。

GP-1000先导型双膜片式高温蒸汽减压阀安装使用:
1、 安装蒸汽减压阀之前须对管路系统进行冲洗清理,以防焊渣、氧化皮等赃物流入阀内,影响阀门正常工作。
2、 斯派莎克蒸汽减压阀应安装便于操作和维修的地方,并且须直立安装在水平管路上,应注意使管路中介质的流向与阀体上箭头所示方向一致,切勿装反。
3、 蒸汽减压阀在安装使用时,应先把旁通管路上的截止阀打开,排除管路中的冷凝水和汽水混合物,以防减压阀开启时产生水击现象损坏减压阀,当无异常现象后,按顺时针方向缓慢旋转调节螺钉,将出口压力调至所需要的压力(以阀后表压为准),调整好后,将锁紧螺母背紧,拧上防护罩。
4、 减压阀前应安装过滤器,以防止介质中的杂质进入减压阀,影响其性能。
5、 斯派莎克蒸汽减压阀安装的前后应有一段直管,阀前直管长度约为600毫米,阀后直管长度约为1000毫米。
6、 蒸汽减压阀进口还要装汽水分离器和疏水阀,出口也要装疏水阀。

订货须知:
一、①产品名称与型号②口径③是否带附件以便我们的为您正确选型④的使用压力⑤的使用介质的温度。
二、若已经由设计单位选定公司的型号,请按型号直接向我司销售部订购。三、当使用的场合非常重要或环境比较复杂时,请您尽量提供设计图纸和详细参数,由我们的阀门公司专家为您审核把关。如有疑问:请:我们一定会尽心尽力为您提供优质的服务。提供全面、*的“阀门系统解决方案",也十分愿意帮助用户解决生产中所遇到的难题。
-
联系方式
- 联系人:申弘阀门
- 电 话:021-59260058
- 手 机:15901754341
- 传 真:86-021-31662735
- 邮 箱:494522509@qq.com
- 邮 编:201718
- 地 址:上海市青浦区金泽工业园区
- 网 址: https://bengye.cn.goepe.com/
http://www.021-fm.com
-
产品搜索






