-
H142X液压水位控制阀申弘
详细信息| 询价留言H142X液压水位控制阀 产品说明
H142X液压水位控制阀,是一种自动控制水箱、水塔液面高度的水力控制阀。当水面下降超过预设值时,浮球阀打开,活塞上腔室压力降低,活塞上下形成压差,在此压差作用下阀瓣打开进行供水作业;当水位上升到预设高度时,浮球阀关闭,活塞上腔室压力不断增大致使阀瓣关闭停止供水。如此往复自动控制液面在设定高度,实现自动供水功能。
是一种自动控制水箱、水塔液面水位高度的水力控制阀。当水面下降超过预设值时,浮球阀打开,活塞上腔室压力降低,活塞上下形成压差,在此压差作用下阀瓣打开进行供水作业;当水位上升到预设高度时,浮球阀关闭,活塞上腔室压力不断增大致使阀瓣关闭停止供水。如此往复自动控制液面在设定高度,实现自动供水功能。

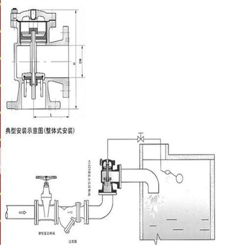
H142X液压水位控制阀作用原理
H142X液压水位控制阀适用于工矿企业、民用建筑中各种水箱(池)、水塔的自动供水系统。并可用作常压锅炉循环供水控制阀。当水池或水塔内水位下降,浮球阀开启排水时,进水管内有压水将阀内活塞托起,密封面打开,阀门即开启供水,当水位上升到控制阀时,浮球阀关闭,活塞下移将密封面封闭,阀门即停止供水。
结构特点
1、运用液压原理控制,结构新颖合理。
2、工作平稳可靠。在规定的使用压力范围内,可保证无水锤冲击。
3、重量轻,体积小。
4、安装维修方便。二、H142X液压水位控制阀主要技术参数
适用介质:洁净水
介质温度:0~80℃
公称压力:1.0MPA 1.6MPA
材质:铸铁,铸钢,不锈钢
四、H142X液压水位控制阀--主要外形尺寸 单位:mm
DN 40 50 65 80 100 125 150 200 250 300 350 L 107 115 125 135 146 165 180 215 255 285 325 H 235 243 258 280 307 358 400 490 576 663 750
H142X液压水位控制阀结构和安装尺寸型 号
规格
(DN)G
(in)小
(mm)A
(mm)B
(mm)H
(mm)n-d
(mm)重量
(kg)阀体材料
H142X-4T-A
80
t/2
150
115
120
255
4 19
16
铸铜
100
1/2
170
132
150
294
24
150
3/4
225
140
200
370
8 19
50
H142X-4-A
200
3/4
280
190
210
455
82
铸铁
250
3/4
335
220
240
525
12 19
144
80
1/2
160
145
145
328
8 19
20
100
1/2
180
160
160
357
29
150
3/4
240
180
200
4i5
8—23
60
H142X-10-A
200
1
295
215
230
482
8—23
95
铸铁
250
1
350
245
260
555
12—23
160
300
1 1/4
400
260
290
620
12 23
2lO
350
1 1/4
460
3lO
3lO
715
16 23
280
400
1 1/4
515
370
370
845
16 28
将此阀垂直固定在进水管上,然后将控制管、和浮球阀连接旋紧在该阀上即可。该阀进水管和出水管连接法兰H142X-4T-A为0.6MPa标准法兰;H142X-10-A为1MPa标准法兰。进水管直径应大于或等于阀门公称通径,出水口应低于浮球阀。浮球阀安装应距离水管一米以上;在水箱内出水管高于水位线处钻一小孔,以防直空回水。使用时,截止阀应全开,如同一水池安装二只以上阀则应保持同一水平面。因主阀关闭要滞后浮球阀关闭约30~50秒,故水箱要有足够的空余容积,以防溢水。为防止杂质、砂粒进入阀内引起工作失灵,阀前应装过滤器。如安装在地下水池,则应在地下泵房安装报警装置.选择水力控制阀要求准确无误地阻汽排水,灵敏度高,能提高蒸汽利用率,不泄漏蒸汽,工作性能可靠,背压率高、使用寿命长、维修方便是首选的条件。
水力控制阀是一种利用水自润式阀体,无须另加机油润滑,如遇主阀内零部件损坏时,请按下列指示进行拆卸。(注:内阀内一般消耗损伤品为膜片和○型圈,其它内部零件损伤甚少)

1.先将主阀前后端闸阀关闭。
2.将主阀盖上的配管接头螺丝松开,释放阀内压力。
3.将所有螺丝取下,包括控制管路中的必要铜管的螺帽。
4.取阀盖和弹簧。
5.将轴芯、膜片、活塞等取下,切勿损伤膜片。6.将以上各项东西取出后,检查膜片及○型圈是否损坏;如无损坏请勿再分自行争其内部零件。
7.如发现膜片或○型圈有损坏,请将轴芯上的螺帽松脱,逐浙分解出膜片或型圈,取出后重新换上新的膜片或○型圈。
8.详细检视主阀内部阀座、轴芯等是否有损坏,若有其它杂物在主阀内部将其清理出。
9.依反向是顺序将更换后的零部件组合装好主阀,注意阀门不能有卡阻现象。

订货须知:
一、①产品名称与型号②口径③是否带附件以便我们的为您正确选型④使用压力⑤使用介质的温度。
二、若已经由设计单位选定公司的型号,请型号直接向我司销售部订购。三、当使用的场合非常重要或环境比较复杂时,请您尽量提供设计图纸和详细参数,由我们的阀门公司专家为您审核把关。如有疑问:请:我们一定会尽心尽力为您提供优质的服务。提供全面、“阀门系统解决方案",也十分愿意帮助用户解决生产中所遇到的难题。
-
联系方式
- 联系人:申弘阀门
- 电 话:021-59260058
- 手 机:15901754341
- 传 真:86-021-31662735
- 邮 箱:494522509@qq.com
- 邮 编:201718
- 地 址:上海市青浦区金泽工业园区
- 网 址: https://bengye.cn.goepe.com/
http://www.021-fm.com
-
产品搜索







