-
JD745X多功能水泵控制阀申弘
详细信息| 询价留言JD745X多功能水泵控制阀产品说明
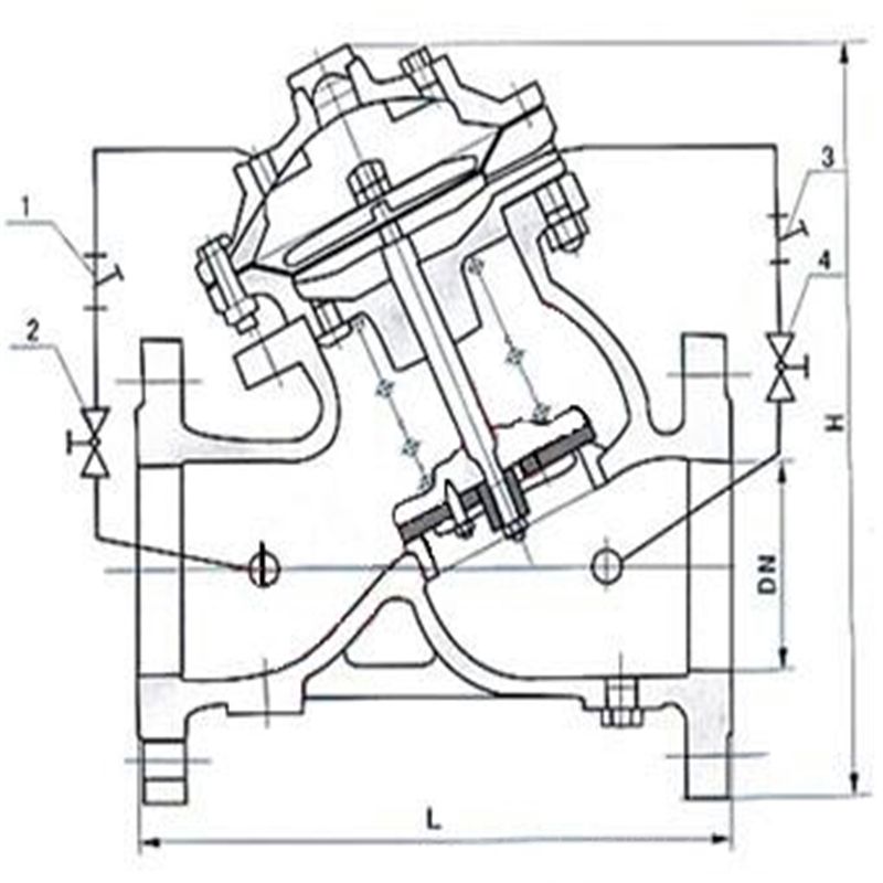
本实用新型属于一种多功能水泵控制阀,多功能水泵控制阀包括阀体、主阀瓣、副阀瓣、上阀盖、中阀盖、阀杆、隔膜片和上下压板,阀体外设有进水导管,过滤器、控制阀、微止回阀和出口导管,其特点是中阀盖上装有隔膜片,将阀门分隔为三个密封的控制腔,并扩大中腔的容积,阀体进出口两端外侧分别装有导管系统,将各控制腔串连起来,阀体进口端导管和中腔串通,出口端导管和上腔串通,主阀瓣活套在阀杆上,并装有过流止回阀,取消了现有技术中在阀杆边设泄流孔的方案,震动轻,对阀杆起到缓冲击作用,延长了阀门寿命,在水泵起动时可减少主、副阀瓣间隙,降低起动压力,节能,消除水锤效果好。水泵控制阀使用前要安装过滤器,并应便于排污的要求。水泵控制阀门的种类一般分为两种,它们的工作原来是差不多的,都是有一个主控制阀来控制所有设备,这两种阀主要分为活塞式和隔膜型,他们两个是配合使用的。

活塞式和隔膜型这两个类型阀的工作原理也是差不多的,主要是通过压力来对开关进行控制,在控制的同时首先用双模片进行控制,然后在控制阀体外的阀体螺杆。
阀门不仅和管道配合使用,很多时候也和水泵进行联系在一起使用,特别是当打开水泵的开关时,内部会产生很大的压力,这个压力可以直接推动阀的打开,然后启动阀的控制台。这种阀门的安全性比较高,特别是控制性能,一般不需要人工去操作控制台,只需要打开水泵后就可以直接利用阀体上的启闭装置进行控制,而且打开和关闭的速度都非常快。
当水泵起动起后,水压作用于主阀阀盘下面和控制室下腔,此压力使主阀开启,控制室上腔的水经过调节阀B缓缓排到出口端,主阀缓缓开启。设定调节阀的开度可得到合适地主阀开启速度。当水泵停止工作后,进口端水压迅速下降,在自重、弹簧压力作用下快速关闭大部分开度,防止了水倒流余下的开度由控制室上腔的水压和下腔水压联合作用下缓缓关闭,关闭速度减慢形成了缓冲,防止压力剧增。
水泵控制阀就是水压控制的阀门,水泵控制阀由一个主阀及其附设的导管﹑导阀﹑针阀﹑球阀和压力表等组成。根据使用目的﹑功能及场所的不同可演变成遥控浮球阀﹑减压阀﹑缓闭止回阀﹑流量控制阀﹑泄压阀﹑水力电动控制阀、水泵控制阀等。本类阀门在管道中一般应当水平安装。设定调节阀A、B的开度和开度比可得到合适的阀门启闭速度。

三、JD745X多功能水泵控制阀--产品特点
1、防止水锤效果好,将缓开、止回速闭、缓闭等消除水锤的技术一体化,防止开泵不锤和停泵倒流与水锤对供水管路和水泵的损害。
2、操作方便,无需为阀门另配电控系统,阀门随水泵的开启与停止自动并按顺序完成控制功能。通过设定调节阀开度可得到合适的控制参数。
3、阀体采用了全通道、直流式、流线型设计。水力损失小,节能效果好。

JD745X多功能水泵控制阀主要技术参数
公称压(Mpa)
壳体试验压力(MPa) 密封试验压力(MPa) 调压范围(MPa) 缓闭时间(S) 低动作压力(MPa) 适用介质 介质温度(℃) 1.0
1.5
1.1
0.09-0.8
3-60 (可调)
≥0.07
水
0-80
1.6
2.4
1.76
0.15-1.4
2.5
3.75
2.75
0.2-2.0
五、JD745X多功能水泵控制阀主要零件材料:
零件名称
零件材料
阀体阀盖
WCB
阀座阀盘
铜合金/2Cr13
密封圈 O型圈
丁腈橡胶
阀杆
2Cr13
弹簧
50CrVA
缸套活塞(活塞型)
2Cr13
膜片(膜片型)
夹织物丁腈橡胶
调节阀球阀
铜合金
过滤器
不锈钢
DN
L
H
D
D1
n-d
1.0MPa
1.6MPo
2.5MPa
1.0MPa
1.6MPa
2 5MPa
1.0MPa
1.6MPa
2.5MPa
50
205
293
165
165
165
125
125
125
4-18
4-18
4-18
65
216
328
185
185
185
145
145
145
4-18
4-18
8-18
80
250
364
200
200
200
160
160
160
8-18
8-18
8-18
100
320
418
220
220
235
180
180
190
8-18
8-18
8-22
125
365
481
250
250
270
210
210
220
8-18
8-18
8-22
150
415
543
285
285
300
240
240
250
8-22
8-22
8-26
200
500
673
340
340
360
295
295
310
8-22
12-22
8-26
250
605
792
395
405
425
350
355
370
12-22
12-26
12-26
300
698
927
445
460
485
400
410
430
12-22
12-26
12-30
350
787
957
505
520
555
460
470
490
16-22
16-26
16-30
400
914
1188
565
580
620
515
525
550
16-26
16-30
16-33
450
978
1218
615
640
670
565
585
600
20-26
20-30
16-36
500
978
1256
670
715
730
620
650
660
20-26
20-33
20-36
600
1200
1600
780
840
725
770
20-30
20-36
20-36
700
1450
1750
895
910
840
840
24-30
24-36
800
1560
1900
1015
1025
950
950
24-33
24-39
900
1800
2100
1115
1050
28-33
1000
2000
2400
1230
1160
28-36
当水泵工作阀门向下游供水时,电磁导阀全开,针阀调至适当开度,上游水经针阀、单向阀进入主阀控制室,经电磁导阀流出,此时主阀控制室的压力保持主阀处于合适的开度,保持下游正常供水。 当水泵停止工作时,电磁导阀先关闭,主阀控制室停止排水,控制室压力升高,主阀开始关闭。当关闭至90%时,主阀上部行程开关输出停泵信号,水泵停止运转。此时下游回水经单向阀进入主阀控制室,控制室压力升高,主阀被关闭。

JD745X多功能水泵控制阀的安装技巧
1. 采用干管干管循环方式(半循环方式)的热水供应工程,减压阀设置要求应与冷水工程相同;
2. 采用立管循环方式(全循环方式)的热水供应工程,减压阀设置应防止热水循环的破坏,各分区回水管在汇合点压力应平衡。
3. 水泵控制阀宜水平安装。水平安装时,阀盖宜向上。
4. 消防给水系统的减压阀阀后应有排水设施。
5. 自动喷水灭火系统的需减压时,减压阀(cn.beiercontrol.com)应设置在报警阀前(沿水流方向),与单个报警阀配套设置的减压阀,可不设备用减压阀;与多个报警阀配套设置的减压阀,应设备厂用减压阀。
水泵控制阀的维护保养
水力控制阀是一种利用水自润式阀体,无须另加机油润滑,如遇主阀内零部件损坏时,请按下列指示进行拆卸。(注:内阀内一般消耗损伤品为膜片和○型圈,其它内部零件损伤甚少)
1.先将主水力控制阀前后端闸阀关闭。
2.将主水泵控制阀盖上的配管接头螺丝松开,释放阀内压力。
3.将所有螺丝取下,包括控制管路中的必要铜管的螺帽。
4.取水力控制阀阀盖和弹簧。
5.将轴芯、膜片、活塞等取下,切勿损伤膜片。
6.将以上各项东西取出后,检查膜片及○型圈是否损坏;如无损坏请勿再分自行争其内部零件。
7.如发现水力控制阀膜片或○型圈有损坏,请将轴芯上的螺帽松脱,逐浙分解出膜片或型圈,取出后重新换上新的膜片或○型圈。
8.详细检视主阀内部水力控制阀座、轴芯等是否有损坏,若有其它杂物在主阀内部将其清理出。
本实用新型涉及一种多功能水泵控制阀,包括阀体、阀瓣、阀杆、复位弹簧、膜片、膜片夹板、锁紧螺母组件和阀盖,膜片和上、下膜片夹板构成膜片控制室,在膜片控制室和阀盖之间设有复位弹簧,阀杆由上下直径不同的两段组成,其上段部分*上端固定在阀盖上的定位孔内,阀杆中段通过锁紧螺母与上膜片夹板固定连接,阀杆下段部分与阀瓣固定连接。本实用新型取消了芯杆和阀瓣上侧的弹簧,减少了芯杆对阀杆的压力,*大限度地减少了介质过流时的接卸损失,提高控制阀的工作效率。

订货须知:
一、①产品名称与型号②口径③是否带附件以便我们的为您正确选型④使用压力⑤使用介质的温度。
二、若已经由设计单位选定公司的型号,请型号直接向我司销售部订购。三、当使用的场合非常重要或环境比较复杂时,请您尽量提供设计图纸和详细参数,由我们的阀门公司专家为您审核把关。如有疑问:请:我们一定会尽心尽力为您提供优质的服务。提供全面“阀门系统解决方案",也十分愿意帮助用户解决生产中所遇到的难题。
-
联系方式
- 联系人:申弘阀门
- 电 话:021-59260058
- 手 机:15901754341
- 传 真:86-021-31662735
- 邮 箱:494522509@qq.com
- 邮 编:201718
- 地 址:上海市青浦区金泽工业园区
- 网 址: https://bengye.cn.goepe.com/
http://www.021-fm.com
-
产品搜索







