-
J644N直行程气动角式燃气截止阀申弘
详细信息| 询价留言J644N直行程气动角式燃气截止阀 产品说明
在阀体内设置有材质为铬钥合金钢的阀体内衬套,在阀体内安装有阀杆及阀瓣外套,阀瓣外套内设阀瓣;在阀盖的中心通孔上部与阀杆之间由下至上设置填料垫、填料环,填料环上表面设置填料压盖,阀杆上端由阀盖及填料压盖的中心孔穿出;其特征是:所述阀盖上设有四个周向分布的用来组装气动装置的螺丝孔,所述阀杆上端安装有用来装卡气动装置的圆螺母;所述阀瓣、阀座采用钨钴类硬质合金;所述阀座与阀瓣的密封面为锥面;所述阀瓣外套与阀瓣之间通过球面滚动轴承连接;阀杆下端与阀瓣外套连接采用锥面形式实现自动定心,阀杆下端面为球面且与阀瓣上端面接触自动调心;所述阀盖的中心通孔下端口为锥面形成上密封点,在阀门开启到顶点时阀杆下端的锥面露出阀瓣外套部分即阀杆上锥端与阀盖的上密封点自动密封。

密封面采用进口四氟,密封性能好,使用寿命长。氨用截止阀经常要用到氨气、氮气、氢气、氩气.氟气等气体/(液体)。这些气体一般都是贮存在专用贮罐中。使用时通过氨用截止阀开启,再经过其它控制阀门细调,使气体输入使用系统。氨阀的法兰常用凹凸面的,氨用截止阀主要设计参数: 氨用截止阀适用介质:氨气、氨液等。适用温度:巴氏合金-40+150℃,四氟-40℃+200℃。
J644N直行程气动角式燃气截止阀区别与其他截止阀的特点是:
1.密封面采用四氟(巴氏合金),密封性能好,使用寿命长
2.中通法兰为凹凸结构,阀杆采用暗杆连接。
3.阀体密封面部位采用球凸状,与阀瓣吻合密封。
4.氨对金属铜;铝;;包括塑料,橡胶都是不允许直接和氨接触
J644N直行程气动角式燃气截止阀本发明的有益效果为:
1.阀瓣、阀座采用钨钴类的硬质合金,钨钴硬质合金具有耐磨、耐高温、抗冲击的特点,当使用介质粉尘、灰渣时,使用压力在4.0Mpa,温度425度,在粉尘、灰渣的强力磨损冲击下有良好的耐磨性,阀瓣与阀座密封仍然保持不渗漏状态,且发挥其耐磨和抗冲击作用,与喷焊镍基合金的阀瓣相比,使用寿命延长6倍以上。
2.阀座与阀座外套为镶嵌式连接,结构简单,确保使用性能,省工省力,提高效益。
3.阀瓣与阀瓣外套之间采用球面滚动轴承方式,能够自动调心,转动更加灵活。
4.阀杆的连接固定只需要通过阀盖与气动装置连接,解决了传统的角式截止阀阀体支架阀盖内部复杂,铸造加工量大难已加工,减少了整个阀门重量和体积,拆卸方便省工省力,减轻工人的劳动强度,节约了安装时间,易于检修。
5.阀盖内中心通孔上部设置压制成形的填料环,换装填料简单容易。

J644N直行程气动角式燃气截止阀应用规范
遵循规范
STANDARD
设计与制造
GB12233/GB 12235
结构长度
GB 12221/JB96(长系列)
结构长度
GB78/JB79(GB、HG、SH)
压力试验
GB/T 13927
标志
GB 12220
供货
GB/T12252
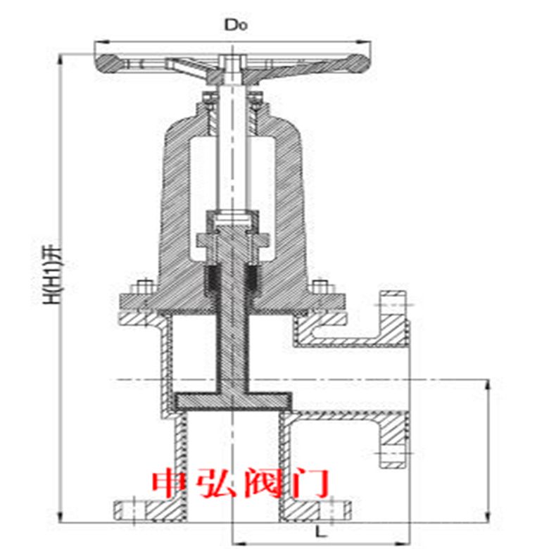
三、J644N直行程气动角式燃气截止阀 1.6MPa主要连接尺寸
DN
in
L
D
D1
D2
f
b
z-φd
Do
H1
H2
W
15
1/2
65/90
95
65
45
2
14
4-φ14
100
240
265
7
20
3/4
75/95
105
75
55
2
16
4-φ14
100
245
270
7.5
25
1
80/100
115
85
65
2
16
4-φ14
120
250
275
8.5
32
21/4
95/105
135
100
78
2
18
4-φ18
140
260
290
12
40
21/2
100/115
145
110
85
2
18
4-φ18
140
290
325
14
50
2
115/125
160
125
100
2
20
4-φ18
160
300
335
19
65
21/2
145
180
145
120
2
20
4-φ18
180
355
400
27
80
3
155
195
160
135
2
22
4-φ18
240
400
450
42
100
4
175
215
180
155
2
24
8-φ18
240
455
495
50
125
5
200
245
210
185
2
26
8-φ18
280
530
560
64
150
6
240/225
280
240
210
2
28
8-φ23
320
605
650
85
200
8
275
335
295
265
2
30
8-φ23
360
650
770
155
四、J644N直行程气动角式燃气截止阀 2.5MPa主要连接尺寸
DN
in
L
D
D1
D2
f
b
z-φd
Do
H1
H2
W
15
1/2
65/90
95
65
45
2
16
4-φ14
120
245
270
7.5
20
3/4
75/95
105
75
55
2
16
4-φ14
120
250
275
8.8
25
1
80/100
115
85
65
2
16
4-φ14
140
260
290
11
32
21/4
95/105
135
100
78
2
18
4-φ18
140
290
325
13
40
21/2
100/115
145
110
85
3
18
4-φ18
160
300
335
18
50
2
115/125
160
125
100
3
20
4-φ18
180
355
400
31
65
21/2
145
180
145
120
3
22
8-φ18
220
400
450
39
80
3
155
195
160
135
3
22
8-φ18
280
450
495
50
100
4
175
230
190
160
3
24
8-φ23
320
530
590
60
125
5
200
270
220
188
3
28
8-φ25
380
600
650
75
150
6
240/225
300
250
218
3
30
8-φ25
400
650
770
98
200
8
275
360
310
278
3
34
12-φ23
450
700
850
1
气动角式截止阀,其特征是:所述填料压盖通过穿过其并安装在阀盖上的双头螺柱及六角螺母将填料压紧并将阀杆密封。本发明公开了一种直行程气动执行器,包括一个密封的腔体,腔体的一侧设置有进气通道,腔体内设置有活塞,活塞的中部与之联动的设置有活塞杆,相应于所述活塞杆与活塞连接端的活塞杆的另一端设置有一带动阀门开启或关闭的装置,腔体的另一侧设置有弹簧,弹簧抵触在活塞与腔体的内底面上,活塞的上部装有膜片,活塞的周边与腔体的内侧面之间通过膜片动密封配合.采用这样的配合结构,可使直行程气动执行器实现无接触式工作,耐用,耐压,工作时间安全可靠.
订货须知:
一、①产品名称与型号②口径③是否带附件以便我们的为您正确选型④的使用压力⑤的使用介质的温度。
二、若已经由设计单位选定公司的型号,请按型号直接向我司销售部订购。三、当使用的场合非常重要或环境比较复杂时,请您尽量提供设计图纸和详细参数,由我们的阀门公司专家为您审核把关。如有疑问:请:我们一定会尽心尽力为您提供优质的服务。提供全面“阀门系统解决方案",也十分愿意帮助用户解决生产中所遇到的难题。
-
联系方式
- 联系人:申弘阀门
- 电 话:021-59260058
- 手 机:15901754341
- 传 真:86-021-31662735
- 邮 箱:494522509@qq.com
- 邮 编:201718
- 地 址:上海市青浦区金泽工业园区
- 网 址: https://bengye.cn.goepe.com/
http://www.021-fm.com
-
产品搜索








