-
DJ961F电动加长杆超低温深冷承插焊截止阀申弘
详细信息| 询价留言DJ961F电动加长杆超低温深冷承插焊截止阀 产品说明
本实用新型中槽和第二中槽的设计为流道和第二流道提供了开孔余量,从而大大方便了流道和第二流道的加工,进一步降低了阀体部的加工难度。 低温焊接截止阀是指关闭件(阀瓣)沿阀座中心线移动的阀门。根据阀瓣的这种移动形式,阀座通口的变化是与阀瓣行程成正比例关系。由于该类阀门的阀杆开启或关闭行程相对较短,而且具有非常可靠的切断功能,又由于阀座通口的变化与阀瓣的行程成正比例关系,非常适合于对流量的调节。
因此,这种类型的阀门非常适合作为切断或调节以及节流使用。由低温切断阀+阀门电动装置两大部分组合而成,可用于低温场合介质使用 连接方式:承插焊接 螺纹连接 法兰连接 ,控制电压可选 DC24V AC220V 380V,电动执行器作用下带动阀杆与阀瓣向下运动,密封件压紧阀座,阀门关闭;Z型多回转阀门电动装置,适用于启闭件做直线运动的阅门,用于实现阀门的开启、关闭或调节控制。
分类:户外型、隔爆型、整体型、整体调节型、隔爆整体调节型等。
电源:常规三相380V(50Hz),特殊660V、415(50Hz、60Hz),单相220V、110V(50Hz、60Hz)
环境温度:-20〜+60℃(特殊订货-40〜+80℃ 〕
防护等级:IP55(特殊订货IP65、IP67)
低温焊接截止阀经特殊的低温处理,将粗加工的零件置于冷却介质中数小时(2-8小时),以释放应力,确保材料的低温性能,工作温度低至-196度。用于空分设备、液化天然气(LNG)、LPG储存及运输装备、液态氧、液态低温氮气氩气等应用。低温长轴截止阀由阀体,阀瓣,阀杆,阀盖,手轮,密封件组成,阀盖采用加长颈结构;其特征是填料密封函采用上填料和下填料组成双重压紧密封结构,介质流道方向采用低进高出,阀体进口通道在阀座密封面的下方,阀体出口通道在阀座密封面的上方。建议低温截止阀在系统*预冷后请检查螺栓螺母及填料压帽等紧固件的锁紧状况,如出现微量泄漏,系由材料遇冷收缩而引起的,将紧固件在冷态下紧固即可。产品适用范围:气体液化、液氧、液态烃和液化天然气、液氮、LNG系统。
DJ61F低温长轴截止阀的启闭件是塞形的阀瓣,密封上面呈平面或海锥面,阀瓣沿阀座的中心线作直线运动。阀杆的运动形式,(通用名称:暗杆),也有升降旋转杆式可用于控制空气、水、蒸汽、各种腐蚀性介质、泥浆、油品、液态金属和放射性介质等各种类型流体的流动。因此,这种类型的截流截止阀阀门适合作为切断或调节以及节流用。DJ61F低温长轴截止阀的阀杆开启或关闭行程相对较短,而且具有切断功能,又由于阀座通口的变化与阀瓣的行程成正比例关系,适合于对流量的调节。

截止阀又称截门阀,属于强制密封式阀门,所以在阀门关闭时,必须向阀瓣施加压力,以强制密封面不泄漏。当介质由阀瓣下方进入阀门时,操作力所需要克服的阻力,是阀杆和填料的摩擦力与由介质的压力所产生的推力,关阀门的力比开阀门的力大,所以阀杆的直径要大,否则会发生阀杆顶弯的故障。按连接方式分为三种:法兰连接、丝扣连接、焊接连接。从自密封的阀门出现后,截止阀的介质流向就改由阀瓣上方进入阀腔,这时在介质压力作用下,关阀门的力小,而开阀门的力大,阀杆的直径可以相应地减少,截止阀的流向,一律采用自上而下。截止阀开启时,阀瓣的开启高度,所以截止阀的全开位置,应由阀瓣的行程来决定。

DJ961F电动加长杆超低温深冷承插焊截止阀工作原理
DJ61F低温长轴截止阀的工作原理是靠旋转阀恋来使阀门畅通或闭塞。闸阀开关轻便,体积小,可以做成很大口径,密封可靠,结构简单,维修方便,密封面与球面常在闭合状态,不易被介质冲蚀,在各行业得到广泛的应用。
截止阀的密封副由阀瓣密封面和阀座密封面组成,阀杆带动阀瓣沿阀座的中心线作垂直运动。截止阀启闭过程中 启高度较小,易于流量的调节,且制造维修方便,压力适用范围广。截止阀密封面不易磨损及擦伤,阀门启闭过程中阀瓣与阀座密封面之间无相对滑动,因此对密封面的磨损与擦伤较小,所以提高了密封副的使用寿命截止阀在全闭过程中阀瓣行程小,其高度相对较小。截止阀的缺点是,启闭力矩较大且难以实现快速启闭,因阀体内流道比较曲折,流体流动阻力大,造成流体动力在管路中损失较大。
DJ961F电动加长杆超低温深冷承插焊截止阀的结构特点
1、启闭无摩擦。这一功能完全解决了传统阀门因密封面之间相互摩擦而影响密封的问题。
2、上装式结构。对装在管道上的阀门可直接在线检查与维修,能有效减少装置停车,降低成本。
3、单阀座设计。消除了阀门中腔介质因异常升压而影响使用安全的问题。
4、低扭矩设计。特殊结构设计的阀杆,只需配一个小手把阀门就能轻松启闭。
5、楔形密封结构。阀门是靠阀杆提供的机械力,将球楔压到阀座上而密封,使阀门的密封性不受管线压差变化的影响,在各种工况下密封性能都有可靠保证。
6、密封面的自清洁结构。当球体倾离阀座时,管线中的流体沿球体密封面成360°均匀通过,不仅消除了高速流体对阀座局部的冲刷,也冲走了密封面上的聚积物,达到自清洁的目的。
7、阀门口径DN50以下的阀体、阀盖是模锻件、DN65以上的阀体、阀盖是铸钢件。
8、阀体与阀盖的连接形式各有不同、夹箍销轴式连接、法兰垫片连接和自密封螺纹连接。
9、阀座、阀瓣密封面均采用等离子喷焊或堆焊钴铬钨硬质合金,密封面硬度高、耐磨、抗擦伤、使用寿命长。
10、阀杆材料为渗氮钢、渗氮后的阀杆表面硬度高、耐磨、抗擦伤、同时防腐蚀、使用寿命长。
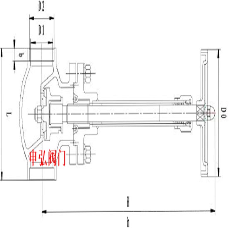
DJ961F电动加长杆超低温深冷承插焊截止阀外型尺寸与连接尺寸
产品型号
DJ61F低温长轴截止阀
重量
(kg)
产品代号
通径
DN(mm)
尺寸(mm)
A
H1
H2
D
a
D0
311J10AB2A3
10
100
253
247
14
2
75
1.5
311J15AB2A3
15
140
268
260
18
2
75
1.7
311J20AB2A3
20
150
307
297
25
2.5
100
2.4
311J25AB2A3
25
160
323
310
32
2.5
100
2.6
311J32AB2A3
32
180
362
346
38
3
120
4.9
311J40AB2A3
40
190
380
360
45
3.5
120
5.2
311J50AB2A3
50
220
445
420
57
3.5
160
10.8
低温截止阀的工作原理是靠旋转阀芯来使阀门畅通或闭塞。闸阀开关轻便,体积小,可以做成很大口径,密封可靠,结构简单,维修方便,密封面与球面常在闭合状态,不易被介质冲蚀,在各行业得到广泛的应用。
低温截止阀的密封由阀瓣密封面和阀座密封面组成,阀杆带动阀瓣沿阀座的中心线作垂直运动。截止阀启闭过程中 启高度较小,易于流量的调节,且制造维修方便,压力适用范围广。低温长轴截止阀密封面不易磨损及擦伤,阀门启闭过程中阀瓣与阀座密封面之间无相对滑动,因此对密封面的磨损与擦伤较小,所以提高了密封圈的使用寿命截止阀在全闭过程中阀瓣行程小,其高度相对较小。截止阀的缺点是,启闭力矩较大且难以实现快速启闭,因阀体内流道比较曲折,流体流动阻力大,造成流体动力在管路中损失较大。
低温长轴截止阀在安装时应注意哪些方面
1、安装阀门时注意介质的流向,严格按阀门流向箭头指示的方向安装。
2、阀门可安装的管道的任何位置、同时根据介质和介质的温度选择碳钢或合金钢的阀门。
3、DJ61F低温长轴截止阀尽量垂直安装,阀杆向上。
订货须知:
一、①产品名称与型号②口径③是否带附件以便我们的为您正确选型④的使用压力⑤的使用介质的温度。
二、若已经由设计单位选定公司的型号,请按型号直接向我司销售部订购。三、当使用的场合非常重要或环境比较复杂时,请您尽量提供设计图纸和详细参数,由我们的阀门公司专家为您审核把关。如有疑问:请:我们一定会尽心尽力为您提供优质的服务。提供全面“阀门系统解决方案",也十分愿意帮助用户解决生产中所遇到的难题。
-
联系方式
- 联系人:申弘阀门
- 电 话:021-59260058
- 手 机:15901754341
- 传 真:86-021-31662735
- 邮 箱:494522509@qq.com
- 邮 编:201718
- 地 址:上海市青浦区金泽工业园区
- 网 址: https://bengye.cn.goepe.com/
http://www.021-fm.com
-
产品搜索










