-
气动固定式燃气球阀Q647F
详细信息| 询价留言Q647F气动固定式燃气球阀产品说明
是新一代高性能球阀,适用于长输管线和一般工业管线,其强度、安全性、耐恶劣环境性等在设计时进行了特殊考虑,适用于各种腐蚀性和非腐蚀性介质。它与浮动球阀相比,工作时,阀前流体压力在球体上产生的作用力全部传递给轴承,不会使球体向阀座移动,因而阀座不会承受过大的压力,所以固定式球阀的转矩小、阀座变形小,密封性能稳定、使用寿命长,适用于高压、大口径场合。先进的弹簧预阀座组件,具有自紧特性,实现上游密封。每阀有两个阀座,每个方向都能密封,因而安装没有流向限制,是双向。本阀有二块式和三块式两种阀体结构,中法兰用螺栓连接,密封采用增强聚四氟乙烯镶入不锈钢圈内,钢圈后部没有弹簧保证阀座紧贴球体,保持密封。上下阀杆均没有PTFE轴承,减少磨擦,操作省力,小轴底部没有调整片,保证球与密封圈的接处位置。全通径:阀门流量孔径与管线内径一致,以便管线清扫。

球体是固定的,受压后不产生移动。固定球球阀都带有浮动阀座,受介质压力后,阀座产生移动,使密封圈紧压在球体上,以保证密封。通常在与球体的上、下轴上装有轴承,操作扭距小,适用于高压和大口径的阀门。为了减少气动球阀的操作扭矩和增加密封的可靠程度,近年来又出现了油封球阀,既在密封面间压注特制的润滑油,以形成一层油膜,即增强了密封性,又减少了操作扭矩,更适用高压大口径的球阀。

特点:
1、采用固定球设计,相对运动部位均采用磨擦系数极小自润滑材料,因而操作扭矩小,此外密封润滑脂的长期密封,使得操作更加灵活。
2、采用高平台结构,iso5211连接标准,能使安装电/气动执行器更为*化。
3、采用全通径或缩径设计,流通阻力小。
4、金属硬密封固定式球阀采用双向金属可动密封结构,具有自动补偿及自洁功能,密封性能优越。
5、采用固定球设计,并增加了预紧力弹簧,使得球阀具有自动泄压功能。
6、每个球阀都有两个可动密封座,两个方向都能密封,因而安装时不须考虑介质的流向。
7、具有防火防静电结构,在阀杆与阀体及阀杆与球体之间设置导电弹簧,避免静电打火点燃易燃介质。确保系统安全。
8、耐火结构双重保护,当万一发生火灾而使密封圈烧损时,球阀的各个密封部位均能形成金属对金属的硬密封结构。
9、自动泄压结构,当滞留在阀门中腔的液体介质由于温度升高而气化,从而中腔压力异常升高时,中腔介质能依靠本身的推力推动阀座而自动泄压,从而确保阀门安全。
10、可选气动、电动、液动、及气动调节型、电动调节型。

Q647F气动固定式燃气球阀主要零件材料执行器型号 GT、AT、ST、SR系列单双作用气动执行器 供气压力 0.4~0.7MPa 气源接口 G1/4"、G1/8"、G3/8"、G1/2" 环境温度 -30~+70℃ 作用形式 单作用执行机构、双作用执行机构 可配附件 定位器、电磁阀、空气过滤减压器、保位阀、行程开关、阀位传送器、手轮机构等 型 号试验压力ps(MPa)工作温度(℃)适用介质壳 体密封(液)密封(气)Q647F-101.5PN1.1PN0.6 MPa-29-200(加玻纤增强聚四氟乙烯)、-29-300(对位聚苯)水、蒸汽、油品等Q647F-16等腐蚀性介质化性介质Q647F-25Q647F-64等腐蚀性介质Q647F-160尿素等腐蚀性介质主要零件材料:
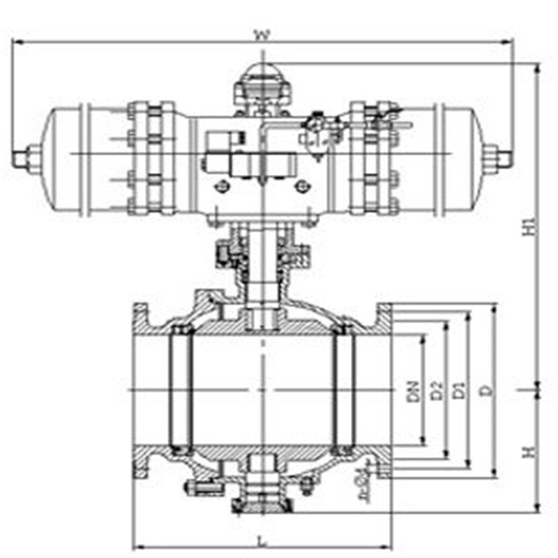
阀 体球体、阀杆阀 座WCB2Cr13加玻纤增强聚四氟乙烯、对位聚苯ZG1Cr18Ni9Ti1Cr18Ni9TiCF80Cr19Ni9-(304)CF300Cr19Ni11-(304L)ZG1Cr18Ni-12Mo2Ti1Cr18Ni12-Mo2TiCF8M0Cr17Ni12-Mo2(316)CF3M00Cr17Ni14-Mo2(316l)气动固定式球阀是新一代高性能球阀,适用于长输管线和一般工业管线,其强度、安全性、耐恶劣环境性等在设计时进行了特殊考虑,适用于各种腐蚀性和非腐蚀性介质。它与浮动球阀相比,工作时,阀前流体压力在球体上产生的作用力全部传递给轴承,不会使球体向阀座移动,因而阀座变形小,密封性能稳定、使用寿命长,适用于高压、大口径场合。阀门安装如果不符合要求,会造成工作不正常或出现故障。反之,安装得当,不仅能够保证正常使用,还可延长阀门使用寿命,减少维修工作量和获得良好的控制性能。PN1.0(MPa)通径(DN)Ld1DD1D2bZ-dH重量125356125245210185228-1854290150394150280240210228-23572130200457200335295265248-236362032505332503903503202612-237262453006103004404003682612-238593993506863505004604282616-239274984007624005655154822616-2510808184508644506155655322820-251120103750091450067062058528
Q647F气动固定式燃气球阀安装维护
1. 认真检查阀门铭牌数据,确定安装位置无误后,才可以进行安装。
2. 注意阀体上的流向标志应和管道内介质流向一致。
3. 阀门应直立安装在管道上,阀本体重量较大和有震动场合应加支撑架。
4. 阀门安装在管道之前,必须把与阀门连接的上下侧管道内的污物、焊渣等异物清除干净。
5. 与管道相连接的垫片,不准伸入管道内部,并注意垫片的材质是否适合于工艺介质。
6. 安装后,阀门应进行启闭检查,并检查咨执行机构和其附件工作是否正常。
7. 阀门内部充压时,应检查阀内及于管道连接处有无泄漏,是否拧紧法兰螺栓。
8. 阀门在拆卸之前,应确保相通管道内没有压力时,才可以进行。订货须知:
一、①产品名称与型号②口径③是否带附件以便我们的为您正确选型④的使用压力⑤的使用介质的温度。
二、若已经由设计单位选定公司的型号,请按型号直接向我司销售部订购。
三、当使用的场合非常重要或环境比较复杂时,请您尽量提供设计图纸和详细参数,由我们的阀门公司专家为您审核把关。如有疑问:请:我们一定会尽心尽力为您提供优质的服务。提供全面、*的“阀门系统解决方案",也十分愿意帮助用户解决生产中所遇到的难题。
-
联系方式
- 联系人:申弘阀门
- 电 话:021-59260058
- 手 机:15901754341
- 传 真:86-021-31662735
- 邮 箱:494522509@qq.com
- 邮 编:201718
- 地 址:上海市青浦区金泽工业园区
- 网 址: https://bengye.cn.goepe.com/
http://www.021-fm.com
-
产品搜索










