-
申弘电动衬氟球阀 Q941F46
详细信息| 询价留言一、Q941F46电动衬氟球阀 概述
本实用新型公开了自动补偿衬氟高性能球阀,它包括阀体、阀轴、阀盖、阀球、阀座和衬套,阀体的内腔表面、阀轴、阀球和阀座上均途设有耐磨层,阀体中安装有阀座,阀座中设有阀球,阀球与阀轴连接,阀球与阀轴下半部的外表面上均包覆有一层衬胶,阀体的内表面上设置有衬套,衬套与阀轴上的衬胶之间安装有L型密封环,在L型密封环上方且位于衬套与衬胶之间的空腔内还填充有密封填料,阀盖套装在阀轴的上半部,且阀盖内安装有弹片,弹片顶压密封填料。本实用新型的有益效果是:它具有使用寿命长、密封效果好、密封填料能够自动补偿以及具有耐磨耐腐蚀性能的优点。
由YX系列电动执行机构和衬氟球阀组成,由于该阀内腔及球体均采用高压注塑工艺,衬有耐腐蚀、耐老化的聚四氟乙丙烯(简称F46),故具有可靠的耐腐蚀性和密封性。电动衬氟球阀执行机构能提供足够的转距,保证阀的可靠开、闭,并带有自动复位的离合器,失电时可自动复位。内置阀位反馈装置可实现阀位信号的传递和远程控制。
衬氟手动球阀就是将通用的Q41F浮动球阀进行更改,使阀体的内壁、内件外部全都覆盖上氟塑料,凡是有介质接触的地方都衬有氟塑料,从而达到耐腐蚀性能。衬氟球阀具有超强的耐腐蚀性能,由于受阻于压力、和温度的影响,不能广泛的使用到各个腐蚀领域上,衬氟类的氟塑料包括有PO、F46、F4、PFA*为常见的衬氟阀门。
由DSR系列电动执行机构和衬氟球阀组成,由于该阀内腔及球体均采用高压注塑工艺,衬有耐腐蚀、耐老化的聚四氟乙丙烯(简称F46),故具有可靠的耐腐蚀性和密封性。执行机构能提供足够的转距,保证阀的可靠开、闭,并带有自动复位的离合器,失电时可自动复位。内置阀位反馈装置可实现阀位信号的传递和远程控制。 Q941F46电动衬氟球阀适用范围
内腔及球体均采用高压注塑工艺衬有耐腐蚀、耐老化的氟塑料,故具有可靠的耐腐蚀性和密封性。广泛用于化工、石油、冶金、医药等工业部门,实现对生产过程中酸、碱等强腐蚀介质的调节或切断,在水处理过程控制中使用效果*明显。
衬氟球阀特点
1.流体阻力小,衬里球阀内壁光滑,流道通畅是所有阀类中流体阻力*小的一种。
2.开关迅速、方便,只需将球体旋转90°,便完成开户和关闭动作。
3.采用特殊模压工艺,将衬里材料衬于阀门壳体内壁,能耐强酸、强碱介质的腐蚀。衬里球面与PTFE阀座组合,密封性好,达到了零泄漏。
4.可配置气动、电动、液动等多种驱动装置,实现远距离控制和自动化操作。
5.球体与阀杆融为一体,消除了转动角差,杜绝了因压力变化引起阀杆冲出体外的危险,保证了使用的安全性、可靠性。 是为各种强腐蚀性介质管路的自动启闭控制而设计的,广泛适用于石油、化工、染化、农药、制酸制碱等行业,是目前防腐阀门设备*理想的选择之一。 产品用途:Q941F46系列气动衬氟球阀采用氟塑料衬里,壳体采用熔模精密铸造,强度高、外观光洁,与液体接触部分全部为氟塑料,因此可在-50℃~180℃范围内长期使用于任意浓度的腐蚀性管路、管线工作。
Q941F46电动衬氟球阀基本型号手动Q41F3蜗轮Q341F3Q41F46Q341F46气动Q641F3电动Q941F3Q641F46Q941F46技术规范设计标准GB12237结构长度GB12221法兰标准JB/T79-94GB9113.1-26检验试验JB/T9092-99驱动方式手动、电动、气动、蜗轮主要零部件材料表
序号零件名称灰铸铁铸钢不锈耐酸铸钢超低碳不锈耐酸铸钢ZCP8R8R3R31阀体/阀盖A216-CA216-WCBA351-CF8A351-CF8MA351-CF3A351-CF3M2球体/阀杆A216-WCBA351-CF8A351-CF8MA351-CF3A351-CF3M3衬里/阀座PTFE(F4)、PCTFE(F3)、FEP(F46)、PFA(可溶F4)4填料/压盖PTFE(F4)A351-CF3A351-CF35填料A216-WCBA351-CF8A351-CF86支架A193-B7A194-8A193-B8M7紧固螺栓A193-B7A193-B8MA194-88螺母A194-2HA194-8A194-89操作手柄A216-WCBA216-WCBA216-WCB电动衬氟球阀 执行机构选配介绍
所配阀门压力为1.6MPa项目类型 YX-05 YX-10 YX-20 YX-40 YX-60 YX-100 YX-200 输出力矩 50N.M 100 N.M 200 N.M 400 N.M 600 N.M 1000 N.M 2000 N.M 动作范围 0~90° 额定电流 0.15A 0.3A 0.45A 0.7A 0.7A 0.85A 0.85A 绝缘电阻 100M/DC500V 电源 AC110/220/380V DC24V 电机功率 8W/E 23 W/E 45 W/E 90 W/E 90 W/E 120 W/E 120 W/E 选配阀门 15-25 15-65 80-100 100-125 125-150 150-200 200-250 执行器重量 2.6Kg 4.2 Kg 7.9 Kg 8.7 Kg 9 Kg 14.7 Kg 15 Kg 
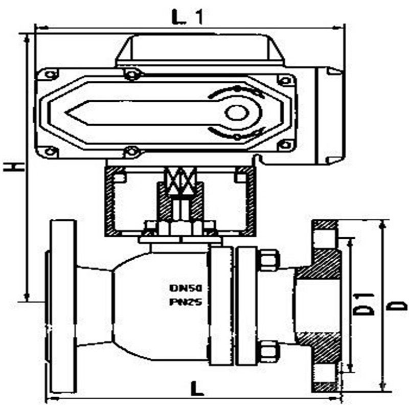
Q941F46电动衬氟球阀主要外型和连接尺寸
电动衬氟球阀由JM系列电动执行机构和衬氟球阀组成,由于该阀内腔及球体均采用高压注塑工艺,衬有耐腐蚀、耐老化的聚四氟乙烯(简称F46),故具有可靠的耐腐蚀性和密封性。执行机构能提供足够的转距,保证阀的可靠开、闭,并带有自动复位的离合器,失电时可自动复位。内置阀位反馈装置可实现阀位信号的传递和远程控制。衬氟球阀是采用氟塑料作为内衬,并配之以新型的带杆球体结构,再加上其独特的弹性唇式密封座结构,使其具有普通球阀的各项优点,能在大压差和较大的温差变化范围内具有高密封性能和低操作扭矩。公称通径标准值参考值DN(mm)NPS
(inch)LDD1D2fbZ-ΦdWDo(蜗轮)HWT(Kg)PN1.0MPa151/21409565452144-Φ14120802.5203/414010575552164-Φ1414090325115011585652164-Φ141601004.53211/4165135100782184-Φ141601105.74011/2180145110852184-Φ1420012075022001601251003204-Φ142501359.56511/22201801451203204-Φ14300145158032501951601353224-Φ143501851910042802151801553228-Φ18400953312553202452101853248-Φ185002105815063602802402103248-Φ232004509320084573352952653268-Φ232404901552501053339035032032812-Φ23240550210PN1.6MPa151/21409565452144-Φ14120802.5203/414010575552164-Φ1414090325115011585652164-Φ141601004.53221/4165135100782184-Φ181601105.74011/2180145110853184-Φ1820012075022001601251003204-Φ182501359.56511/22201801451203204-Φ18300145158032501951601353228-Φ183501851910042802151801553248-Φ184001953312553202452101853268-Φ185002105815063602802402103288-Φ2320045093200845733529526533012-Φ23240490155PN2.5MPa151/21409565452164-Φ14120802.5203/414010575552164-Φ1414090325115011585652164-Φ141601004.53211/4165135100782184-Φ181601105.74011/2180145110853184-Φ1820012075022001601251003204-Φ182501359.56521/22201801451203228-Φ18300145158032501951601353228-Φ183001851910042802301901603248-Φ232001953312553202702201883288-Φ252002105815063603002502183308-Φ252004509
氟塑料或塑料衬里的耐腐蚀阀门及管理附件,由于其固有的特殊性质,在产品安装、维修及保养等方面具有以下的特点:
1阀门或管件法兰盖板不能随意拆开,除非已准备与管理连接,否则PTFE法兰面可能因温差、异物造成磕碰划伤或扭曲变形而影响密封,如因检验需要而移动盖板,也必须待检验后速将盖板重新复位,以保护PTFE法兰面。
2氟塑料或塑料衬里阀门及管件管路连接时,一般并不再单独使用垫片,但与异种材料(金属面等)法兰面相接时,应采用适当垫片,以保护PTFE法兰面。
3产品在系统使用中,如在较高温度下发生泄漏,应首先将系统温度降至室温后,再查明原因,进行维修。
4不允许在阀门及管件上做任何高温焊接工作,以免造成衬里层的永久损害。
5安装时法兰螺母应按对角线方向对称依次均匀旋紧,并配以适当力矩:
若法兰密封面发生泄漏,并且泄漏位置螺母已经锁紧,此时应放松泄漏位置螺母半圈,再将其对侧施以同样力矩再次锁紧。若上述办法仍未止漏时,应检查PTFE法兰面是否有凹凸面压痕、划伤,届时可用细砂纸、布予以整平重新连接。
6阀门及管件应存于干燥通风的室内,严禁堆叠放置。
7长期存放的阀门其密封应呈微启分离状态,避免密封面长期受压发生永久变形,影响密封性能和使用寿命。
8手动操作阀门时,不允许借助其他杠杆加力强行开关阀门
9有方向性要求的阀门在安装时要注意介质的流向顺阀体上箭头所示方向,并确保操作、维修方便。
10经维修后的阀门使用前要按标准测试合格后方可安装。
可作开关或调节之用,本产品适用于各种工业管道中液体和气体的输送(包括蒸气),在各种酸、碱、盐类等强腐蚀性介质中均能很好地工作。全通径阀门提供*大的流量,并可用于扫线清洗或隔离输送的管道。 产品广泛适用于各种不同类型工业管道中液体和气体(包括蒸气)的输送,特别是具有严重腐蚀性介质的使用场合,一、①产品名称与型号②口径③是否带附件以便我们的为您正确选型④的使用压力⑤的使用介质的温度。
二、若已经由设计单位选定公司的型号,请按型号直接向我司销售部订购。三、当使用的场合非常重要或环境比较复杂时,请您尽量提供设计图纸和详细参数,由我们的阀门公司专家为您审核把关。如有疑问:请:我们一定会尽心尽力为您提供优质的服务。提供全面、*的“阀门系统解决方案",也十分愿意帮助用户解决生产中所遇到的难题。
-
联系方式
- 联系人:申弘阀门
- 电 话:021-59260058
- 手 机:15901754341
- 传 真:86-021-31662735
- 邮 箱:494522509@qq.com
- 邮 编:201718
- 地 址:上海市青浦区金泽工业园区
- 网 址: https://bengye.cn.goepe.com/
http://www.021-fm.com
-
产品搜索










